Technologia i wykończenie:
Fundamenty: ławy, bloczki betonowe 24 cm, ocieplenie styropian 15 cm
Ściany zewnętrzne: murowane, dwuwarstwowe, cegła ceramiczna poryzowana 24 cm, ocieplenie 25 cm
Ściany wewnętrzne: murowane cegła ceramiczna poryzowana, ściany nośne 24 cm i działowe 11,5 cm
Podłoga na gruncie: płyta betonowa, ocieplenie wełna mineralna 20 cm
Strop: strop międzypiętrowy gęstożebrowy Teriva
Dach: konstrukcja drewniana, ocieplenie wełna mineralna 30 cm, dachówka ceramiczna
Elewacja: tynk cienkowarstwowy mineralny, okładzina drewniana i kamienna
Stolarka: drewniana, PCV lub aluminiowa
Inne: żaluzje zewnętrzne przesuwne
Benjamin G1 MULTI-COMFORT to dom, który odzwierciedla nowoczesne podejście do klasycznej architektury. Na elewacji zastosowano modne połączenie materiałów i faktur – biały i szary tynk zgrabnie przeplata się z chłodną urodą kamienia oraz drewnem w odcieniu dojrzałej wiśni. Otwarta i przestronna strefa dzienna z centralnie usytuowany, kominkiem sprzyja zacieśnianiu rodzinnych więzi.
Dom spełnia standard MULTI-COMFORT Grupy Saint-Gobain. Komfort rozumiany jako wpływ środowiska, w którym mieszkamy na nasze samopoczucie i zdrowie. Dom realizuje tę ideę za pomocą właściwego połączenia wszystkich elementów funkcjonujących w budynku – odpowiedniego oświetlenia, właściwej wentylacji, konstrukcji ścian, dachu oraz instalacji, przy jednoczesnej trosce o środowisko naturalne. Najwyższą jakość produktów Saint-Gobain zapewniają marki: ISOVER, Rigips, Ecophon, PAM, Weber, Glass oraz Glasssolution.
Charakterystyka: Dom parterowy z poddaszem użytkowym, niepodpiwniczony, z garażem jednostanowiskowym
Przeznaczenie: Dom dla 3-5-osobowej rodziny
Układ funkcjonalny:
Strefa dzienna – parter: salon z jadalnią i kominkiem oraz kuchnia
Dodatkowo na parterze: gabinet, spiżarnia, łazienka, duża kotłownia i garaż
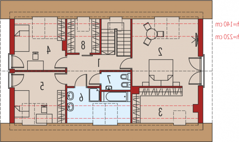
Strefa nocna – poddasze: dwie duże sypialnie, komfortowa sypialnia główna z garderobą oraz łazienka
Dodatkowo na poddaszu: garderoba, toaleta
Dostępne wersje:
- Benjamin G1 Energo ENERGO– wersja standardowa
- Benjamin II G2 ENERGO – inne wykończenie elewacji, z garażem dwustanowiskowym
- Odbicie lustrzane do każdej wersji