Ściany zewnętrzne 2-warstwowe : Beton komórkowy ( 24cm) / Pustak ceramiczny (25cm) + styropian 20cm Uściany < 0,20 W/(m2*K) – warunek spełniony.
Ławy fundamentowe tradycyjne. Ściany fundamentowe betonowe gr.24(25cm) z bloczków betonowych lub wylewane.
Stropy - płyta żelbetowa . Zamiennie można zastosować strop gęstożeberkowy typu TERIVA .
Konstrukcja dachu - tradycyjna drewniana , pokrycie dachu z dachówki ceramicznej.
Elewacje - pokryte tynkiem strukturalnym cienkowarstwowym.
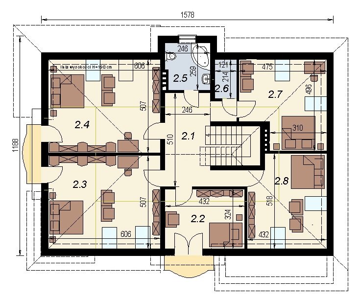
dom posiada duże, ustawne pomieszczenia o znacznych metrażach. przeznaczony do zamieszkania dla 5-6 osobowej rodziny, na parterze zlokalizowano strefę dzienną, na poddaszu zlokalizowano strefę nocną - sypialnie oraz pomieszczenia sanitarne. dom posiada wygodny garaż na 2 samochody.
energooszczędność:
wersja standardowa:
projekt spełnia wymagania cieplne dla nowo projektowanych domów określone w wt2008 ( rozporządzenie ministra infrastruktury dotyczące "warunków technicznych ,jakim powinny odpowiadać budynki i ich usytuowanie )
charakterystyka energetyczna w granicach 120 [kwh/m2/rok]
wersja energooszczędna:
projekt dostępny w wersji energooszczędnej .czas realizacji zamówienia 10dni.
charakterystyka energetyczna w granicach 75 [kwh/m2/rok]
projekt w tej wersji posiada instalację wentylacji z odzyskiem ciepła oraz zmodyfikowane grubości izolacji fundamentów,podłóg,ścian, stropów i dachu.
|1.1 PRZEDSIONEK 4.99
|1.2 HALL 16.28
|1.3 KUCHNIA 20.01
|1.4 SALON 41.61
|1.5 ŁAZIENKA 6.13
|1.6 BIURO 20.35
|1.7 SCHOWEK 1.12
|1.8 POM GOSPODARCZE 6.87
|1.9 GARAŻ 2 ST. 34.01