Ściany zewnętrzne 2-warstwowe : Beton komórkowy ( 24cm) / Pustak ceramiczny (25cm) + styropian 20cm . Ławy fundamentowe tradycyjne. Ściany fundamentowe betonowe gr.24(25cm) z bloczków betonowych lub wylewane. Stropy - płyta żelbetowa . Zamiennie można zastosować strop gęstożeberkowy. Konstrukcja dachu - tradycyjna drewniana , pokrycie dachu z dachówki ceramicznej. Elewacje - pokryte tynkiem strukturalnym cienkowarstwowym.
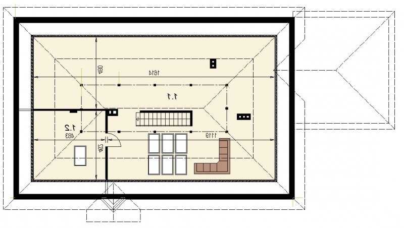
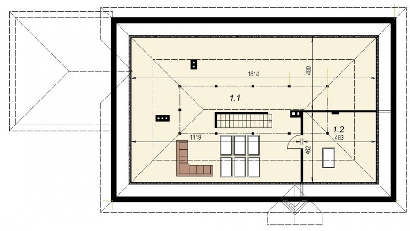
Obszerny dom jednorodzinny parterowy z poddaszem "otwartym" do dowolnego zagospodarowania przeznaczony na nietypową, wąską działkę.parter budynku posiada podział na strefę dzienną i nocną. dom posiada garaż na 2 samochody osobowe. podobne projekty to dj 18a ( z zagospodarowanym poddaszem ) oraz dj 1 ( mniejsza wersja dj 18 ).
Energooszczędność:
Wersja standardowa:
Projekt spełnia wymagania cieplne dla nowo projektowanych domów określone w wt2008 ( rozporządzenie ministra infrastruktury dotyczące "warunków technicznych ,jakim powinny odpowiadać budynki i ich usytuowanie )
charakterystyka energetyczna w granicach 120 [kwh/m2/rok]
Wersja energooszczędna:
Projekt dostępny w wersji energooszczędnej .czas realizacji zamówienia 10dni.
charakterystyka energetyczna w granicach 75 [kwh/m2/rok]
projekt w tej wersji posiada instalację wentylacji z odzyskiem ciepła oraz zmodyfikowane grubości izolacji fundamentów,podłóg,ścian, stropów i dachu.