Dane techniczne
- Powierzchnia użytkowa 175.60 m²
- Powierzchnia zabudowy 171.00 m²
- Kąt nachylenia dachu 35.00°
- Wysokość budynku 8.20 m
- Min. wymiary działki 26.24x16.00 m
- Garaż 20.30 m²
- Pracownia Archdesign
Technologia budowy
Ściany zewnętrzne 2-warstwowe : Beton komórkowy ( 24cm) / Pustak ceramiczny (25cm) + styropian 20cm Uściany < 0,20 W/(m2*K) – warunek spełniony.
Ławy fundamentowe tradycyjne. Ściany fundamentowe betonowe gr.24(25cm) z bloczków betonowych lub wylewane.
Stropy - płyta żelbetowa . Zamiennie można zastosować strop gęstożeberkowy typu TERIVA .
Konstrukcja dachu - tradycyjna drewniana , pokrycie dachu z dachówki ceramicznej.
Elewacje - pokryte tynkiem strukturalnym cienkowarstwowym.
Opis
Dom współczesny o tradycyjnej formie i z nowoczesnymi akcentami na elewacji. Dostępna wersja z garażem 2-stanowiskowym. Istnieje możliwość opracowania innej wersji tego projektu.
Energooszczędność:
Wersja standardowa:
Projekt spełnia wymagania cieplne dla nowo projektowanych domów określone w wt2008 ( rozporządzenie ministra infrastruktury dotyczące "warunków technicznych ,jakim powinny odpowiadać budynki i ich usytuowanie )
charakterystyka energetyczna w granicach 120 [kwh/m2/rok]
Wersja energooszczędna:
Projekt dostępny w wersji energooszczędnej .czas realizacji zamówienia 10dni.
charakterystyka energetyczna w granicach 75 [kwh/m2/rok]
projekt w tej wersji posiada instalację wentylacji z odzyskiem ciepła oraz zmodyfikowane grubości izolacji fundamentów,podłóg,ścian, stropów i dachu.
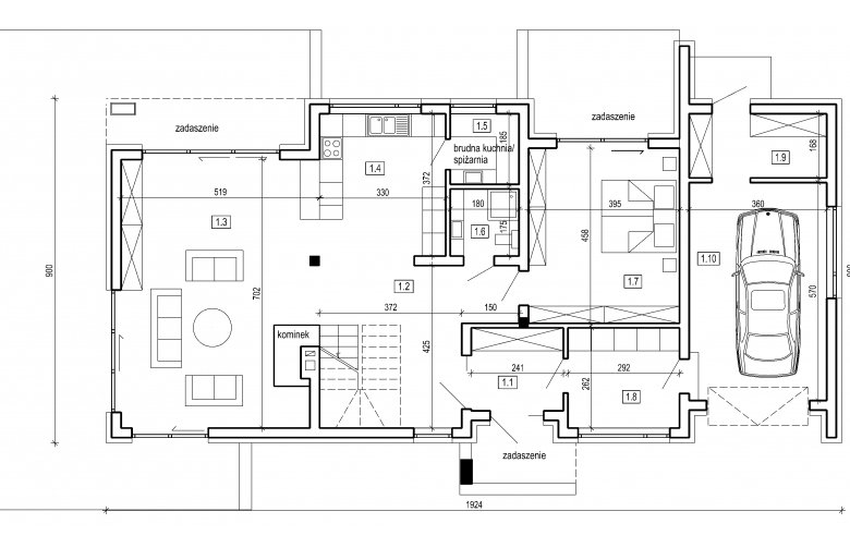
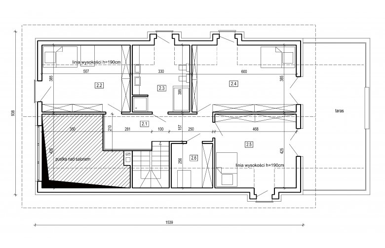
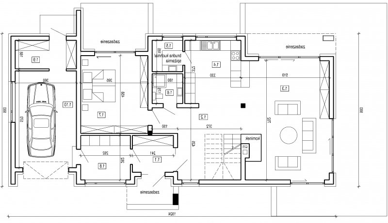
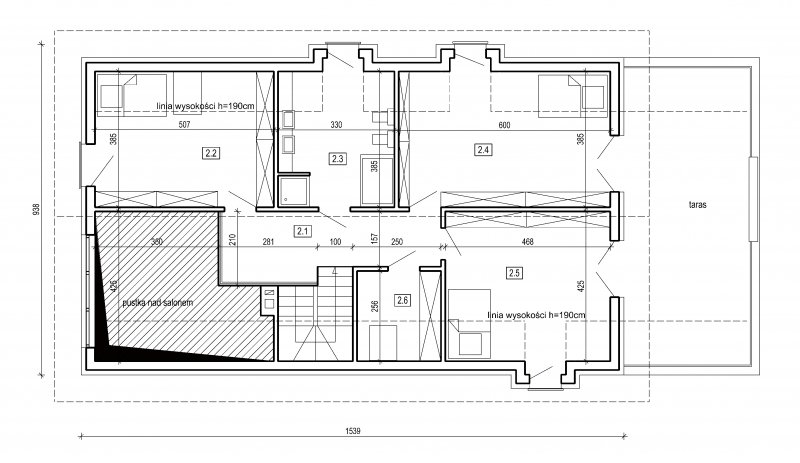
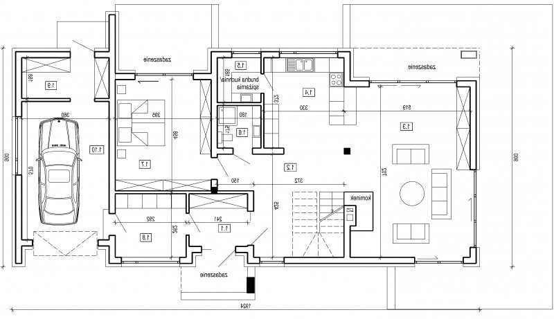
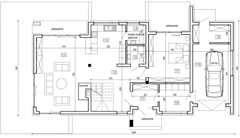
Rzuty
1.1 Przedsionek 5.1
1.2 Hall 13.4
1.3 Pokój dzienny 34.2
1.4 Kuchnia 12.1
1.5 Spiżarnia 3.2
1.6 Łazienka 3.1
1.7 Sypialnia 2os. 18.0
1.8 Pom. gosp. 7.5
1.9 Pom. gosp. 5.9
1.10 Garaż 1st. 20.3
2.1 Przedpokój 11.2
2.2 Pokój 13.5
2.3 Łazienka 10.3
2.4 Pokój 17.8
2.5 Pokój 17.1
2.6 Garderoba 3.2
Rzuty
1.1 Przedsionek 5.1
1.2 Hall 13.4
1.3 Pokój dzienny 34.2
1.4 Kuchnia 12.1
1.5 Spiżarnia 3.2
1.6 Łazienka 3.1
1.7 Sypialnia 2os. 18.0
1.8 Pom. gosp. 7.5
1.9 Pom. gosp. 5.9
1.10 Garaż 1st. 20.3
2.1 Przedpokój 11.2
2.2 Pokój 13.5
2.3 Łazienka 10.3
2.4 Pokój 17.8
2.5 Pokój 17.1
2.6 Garderoba 3.2
Dbamy o swoich Klientów, jak nikt inny!
Do każdego projektu zakupionego za pośrednictwem serwisu kreoDOM.pl otrzymasz książeczkę z rabatami na zakupy w firmach Komfort, Fachowiec, Domino Łazienki, Komandor, Witek Home i innych. Książeczka na pewno okaże się przydatna podczas urządzania Twojego wymarzonego domu!
Książeczka z rabatami do takich firm jak: Komfort, Domino Łazienki, Fachowiec, Vox, Komandor, Witek Home i innych
Gwarancja
bezpiecznych zakupów
Dodatkowe pakiety projektowe