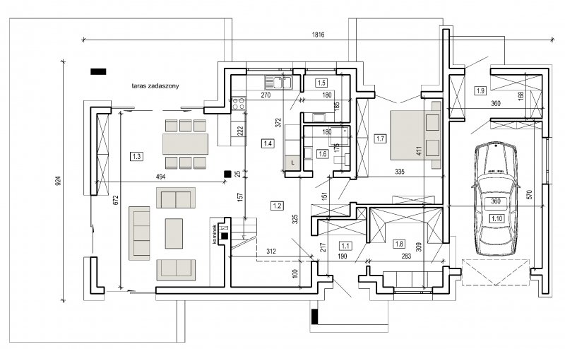
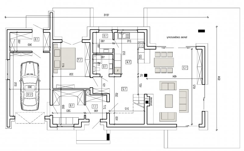
dom parterowy z poddaszem użytkowym. parter domu tworzy otwartą przestrzeń na którą składa się kuchnia z możliwością wykonania tzw."wyspy", salon oraz komunikacja.parter domu jest dobrze doświetlony. z salonu dostępne jest wyjście na zadaszony taras.kominek można wykonać jako nowoczesny z wkładem narożnym.poddasze to cześć nocna na którą składają się 4 sypialnie oraz pomieszczenia pomocnicze. dom posiada garaż na 1 samochód osobowy z możliwością jego powiększenia do 2 stanowisk.
energooszczędność:
wersja standardowa:
projekt spełnia wymagania cieplne dla nowo projektowanych domów określone w wt2008 ( rozporządzenie ministra infrastruktury dotyczące "warunków technicznych ,jakim powinny odpowiadać budynki i ich usytuowanie )
charakterystyka energetyczna w granicach 120 [kwh/m2/rok]
wersja energooszczędna:
projekt dostępny w wersji energooszczędnej .czas realizacji zamówienia 10dni.
charakterystyka energetyczna w granicach 75 [kwh/m2/rok]
projekt w tej wersji posiada instalację wentylacji z odzyskiem ciepła oraz zmodyfikowane grubości izolacji fundamentów,podłóg,ścian, stropów i dachu.
Parter:
1.1 Przedsionek 4.2
1.2 Hall 10.5
1.3 Pokój dzienny 29.9
1.4 Kuchnia otwarta 10.0
1.5 Spiżarnia 3.2
1.6 Łazienka 3.0
1.7 Sypialnia 13.6
1.8 Pom.gospodarcze/pralnia 8.4
1.9 Pom.gospodarcze 5.9
1.10 Garaż 1-stanowiskowy 20.3
Razem p.u. parteru bez garażu: 88.7
z garażem: 109.0