Ściany zewnętrzne 2-warstwowe : Beton komórkowy ( 24cm) / Pustak ceramiczny (25cm) + styropian 20cm Uściany < 0,20 W/(m2*K) – warunek spełniony.
Ławy fundamentowe - tradycyjne. Ściany fundamentowe betonowe gr.24(25cm) z bloczków betonowych lub wylewane.
Stropy - płyta żelbetowa . Zamiennie można zastosować strop gęstożeberkowy typu TERIVA .
Konstrukcja dachu - tradycyjna drewniana , pokrycie dachu z dachówki ceramicznej.
Elewacje - pokryte tynkiem strukturalnym cienkowarstwowym.
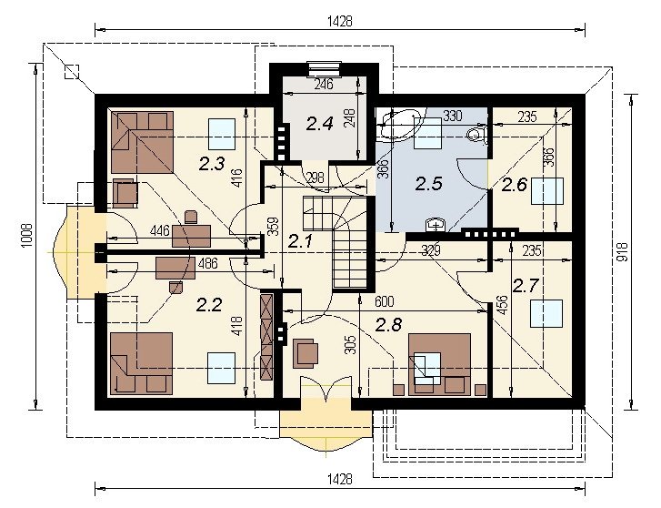
Dom jednorodzinny przeznaczony do zamieszkania dla 5-6 osobowej rodziny. Na parterze zlokalizowano część dzienną i gospodarczą. na poddaszu znajduje się część nocna. Uwzględniono garaż na 2 samochody osobowe. Dostępna jest również wersja projektu z częściowym podpiwniczeniem.
Energooszczędność:
Wersja standardowa:
Projekt spełnia wymagania cieplne dla nowo projektowanych domów określone w wt2008 (rozporządzenie ministra infrastruktury dotyczące "warunków technicznych ,jakim powinny odpowiadać budynki i ich usytuowanie). Charakterystyka energetyczna w granicach 120 [kwh/m2/rok]
Wersja energooszczędna:
Projekt dostępny w wersji energooszczędnej. Czas realizacji zamówienia 10dni.
Charakterystyka energetyczna w granicach 75 [kwh/m2/rok].
Projekt w tej wersji posiada instalację wentylacji z odzyskiem ciepła oraz zmodyfikowane grubości izolacji fundamentów, podłóg, ścian, stropów i dachu.
1.1 Przedsionek 4.98
1.2 Hall 7.81
1.3 Kuchnia 6.89
1.4 Aneks 9.65
1.5 Pokój dzienny 29.33
1.6 Łazienka 5.86
1.7 Pokój 11.95
1.8 Pom gospodarcze 8.24
1.9 Garaż 33.98
pu. parteru (bez garażu) 84.71