Ściany zewnętrzne 2-warstwowe: Beton komórkowy ( 24cm)/ Pustak ceramiczny (25cm) + styropian 20cm Uściany < 0,20 W/(m2*K) – warunek spełniony.
Ławy fundamentowe tradycyjne: Ściany fundamentowe betonowe gr.24(25cm) z bloczków betonowych lub wylewane.
Stropy - płyta żelbetowa. Zamiennie można zastosować strop gęstożeberkowy typu TERIVA.
Konstrukcja dachu - tradycyjna drewniana. Pokrycie dachu z dachówki ceramicznej.
Elewacje - pokryte tynkiem strukturalnym cienkowarstwowym.
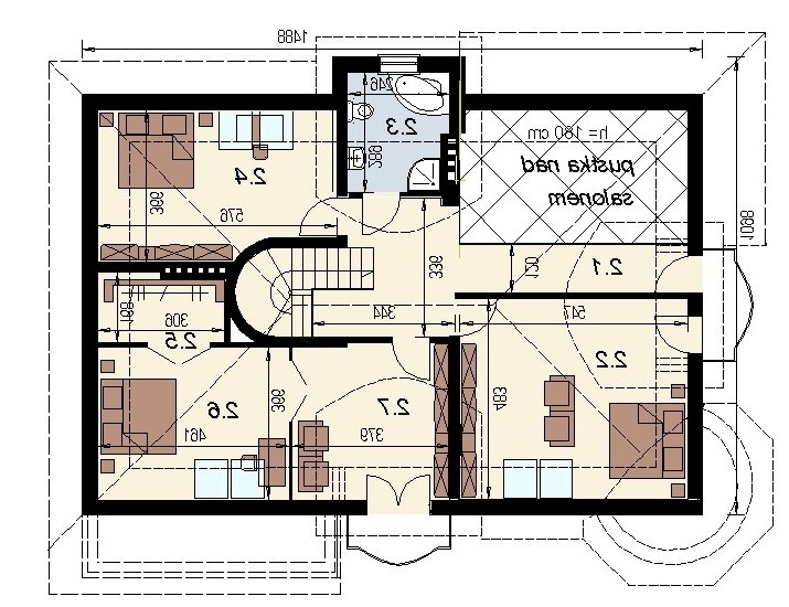
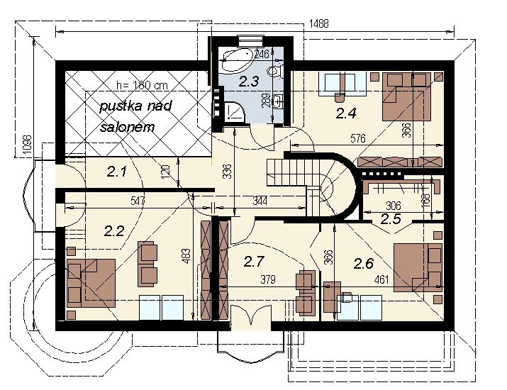
Elementami wyrózniającymi ten dom spośród innych o architekturze typowej jest okrągła wieżyczka, w której znajduje się nastrojowa jadalnia dla 6 osób oraz lukarny z zaokrągloną połacią dachową. Łącznie elementy te tworzą ciekawy efekt. Dodatkowo we wnętrzu domu znajduje się salon bez stropu (pustka nad salonem) oraz długa galeria z widokiem na salon, prowadząca do wejścia na balkon.
Dom został zaprojektowany dla 5-6 osobowej rodziny.Parter jest strefą typowo dzienną, na poddaszu zlokalizowano strefę nocną- sypialnie oraz pomieszczenia sanitarne. Dom posiada garaż na 2 samochody osobowe.
Wbrew krążącym opiniom, elementy te nie są ani kosztowne w realizacji, ani czasochłonne w wykonaniu.Wykonanie tych elementów architektury nie stwarza problemów w czasie realizacji inwestycji.
Energooszczędność:
Wersja standardowa:
Projekt spełnia wymagania cieplne dla nowo projektowanych domów określone w WT2008 ( Rozporządzenie Ministra Infrastruktury dotyczące "warunków technicznych ,jakim powinny odpowiadać budynki i ich usytuowanie )
Charakterystyka energetyczna w granicach 120 [kWh/m2/rok]
Wersja energooszczędna:
Projekt dostępny w wersji energooszczędnej .Czas realizacji zamówienia 10dni.
Charakterystyka energetyczna w granicach 75 [kWh/m2/rok]
Projekt w tej wersji posiada instalację wentylacji z odzyskiem ciepła oraz zmodyfikowane grubości izolacji fundamentów,podłóg,ścian, stropów i dachu.
1.1 PRZEDSIONEK 4.26
1.2 HALL 13.79
1.3 KUCHNIA 9.49
1.4 JADALNIA 9.96
1.5 SALON 34.69
1.6 ŁAZIENKA 6.82
1.7 PRACOWNIA 10.77
1.8 POM. GOSPODARCZE 8.29
1.9 GARAŻ 2 ST. 34.97
razem pu. parteru (bez garażu) 98.07
z garażem 133.04