Ściany zewnętrzne 2-warstwowe : Beton komórkowy ( 24cm) / Pustak ceramiczny (25cm) + styropian 20cm Uściany < 0,20 W/(m2*K) – warunek spełniony.
Ławy fundamentowe tradycyjne. Ściany fundamentowe betonowe gr.24(25cm) z bloczków betonowych lub wylewane.
Stropy - płyta żelbetowa . Zamiennie można zastosować strop gęstożeberkowy typu TERIVA .
Konstrukcja dachu - tradycyjna drewniana , pokrycie dachu z dachówki ceramicznej.
Elewacje - pokryte tynkiem strukturalnym cienkowarstwowym.
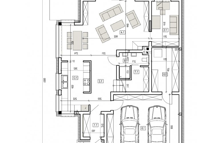
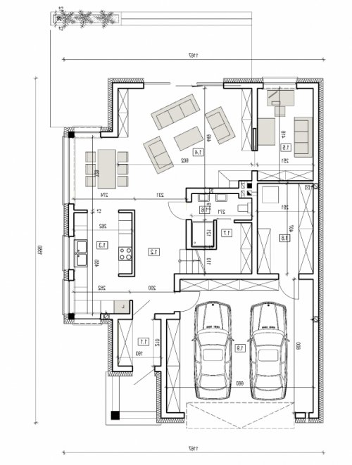
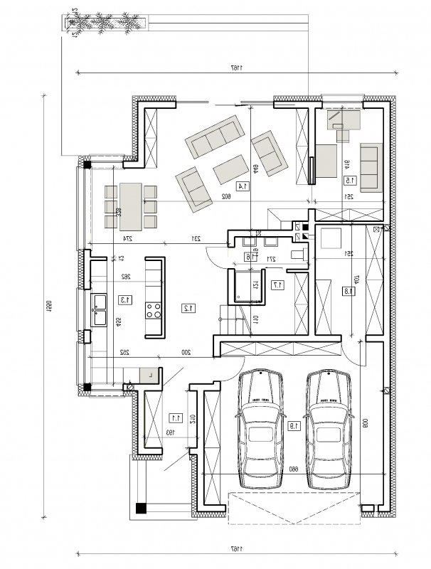
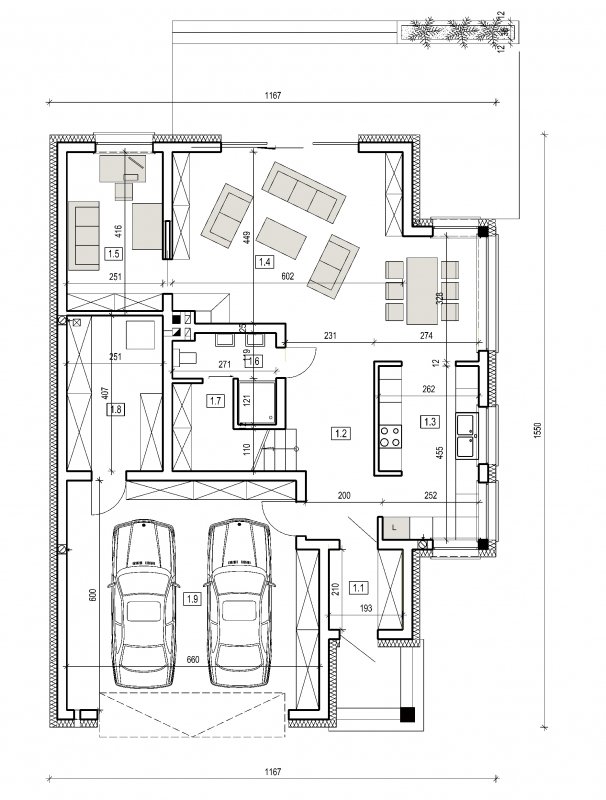
Dom parterowy z poddaszem użytkowym zaprojektowany na wąską działkę o szerokości minimalnej 18.67m. Parter domu ma charakter strefy dziennej, na którą składa się częściowo otwarta kuchnia, jadalnia, salon oraz mały gabinet. Poddasze to część nocna z sypialniami i garderobami. Dom posiada wbudowany garaż na 2 samochody osobowe oraz dość duże pomieszczenie gospodarcze.
Energooszczędność:
Wersja standardowa:
Projekt spełnia wymagania cieplne dla nowo projektowanych domów określone w wt2008 (rozporządzenie ministra infrastruktury dotyczące "warunków technicznych ,jakim powinny odpowiadać budynki i ich usytuowanie)
charakterystyka energetyczna w granicach 120 [kwh/m2/rok]
Wersja energooszczędna:
Projekt dostępny w wersji energooszczędnej .czas realizacji zamówienia 10dni.
charakterystyka energetyczna w granicach 75 [kwh/m2/rok]
projekt w tej wersji posiada instalację wentylacji z odzyskiem ciepła oraz zmodyfikowane grubości izolacji fundamentów,podłóg,ścian, stropów i dachu.
1.1 PRZEDSIONEK 3.9
1.2 PRZEDPOKÓJ SCHODY 12.7
1.3 KUCHNIA 11.4
1.4 POKÓJ DZIENNY 35.8
1.5 POKÓJ 10.2
1.6 ŁAZIENKA 4.2
1.7 SCHOWEK 1.3
1.8 POMIESZCZENIE GOSPODARCZE 10.0
1.9 GARAŻ 38.0