Ściany zewnętrzne 2-warstwowe : Beton komórkowy ( 24cm) / Pustak ceramiczny (25cm) + styropian 20cm Uściany < 0,20 W/(m2*K) – warunek spełniony.
Ławy fundamentowe tradycyjne. Ściany fundamentowe betonowe gr.24(25cm) z bloczków betonowych lub wylewane.
Stropy - płyta żelbetowa . Zamiennie można zastosować strop gęstożeberkowy typu TERIVA .
Konstrukcja dachu - tradycyjna drewniana , pokrycie dachu z dachówki ceramicznej.
Elewacje - pokryte tynkiem strukturalnym cienkowarstwowym.
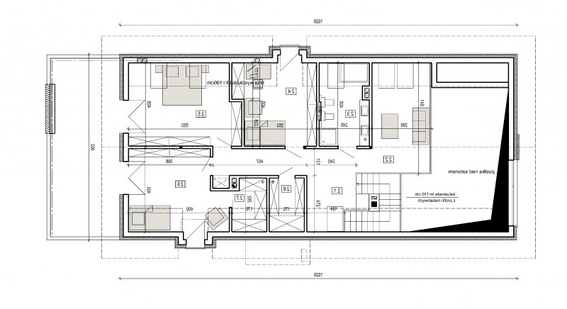
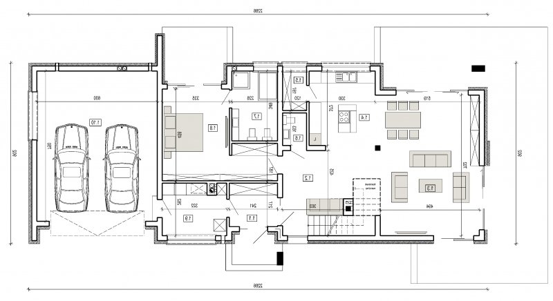
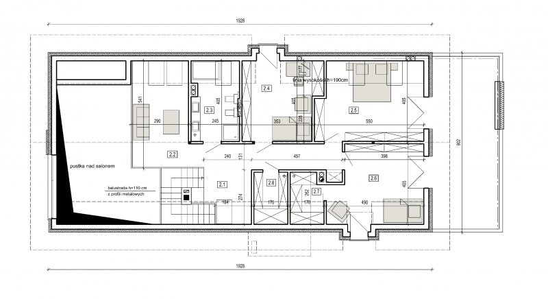
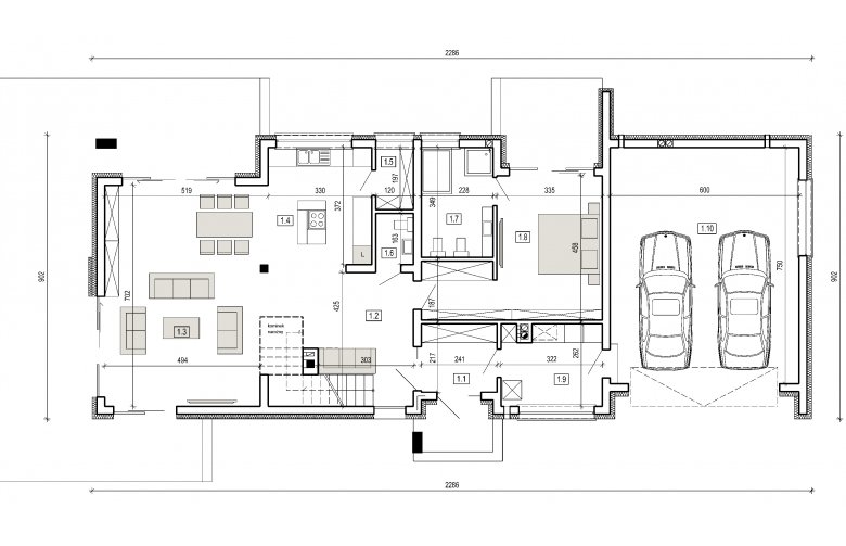
Dom tradycyjny ze współczesnymi akcentami. W części dziennej wnętrze typu otwartego z nowoczesną kuchnią -wyspą, kominkiem narożnym oraz ażurowymi (ewentualnie żelbetowymi) schodami na poddasze. Nad salonem znajduje się otwarta przestrzeń. Poddasze to sypialnie z garderobami. Na antresoli można urządzić małą biblioteczkę. Dom posiada duży garaż na 2 samochody osobowe.
energooszczędność:
wersja standardowa:
projekt spełnia wymagania cieplne dla nowo projektowanych domów określone w wt2008 ( rozporządzenie ministra infrastruktury dotyczące "warunków technicznych ,jakim powinny odpowiadać budynki i ich usytuowanie )
charakterystyka energetyczna w granicach 120 [kwh/m2/rok]
wersja energooszczędna:
projekt dostępny w wersji energooszczędnej .czas realizacji zamówienia 10dni.
charakterystyka energetyczna w granicach 75 [kwh/m2/rok]
projekt w tej wersji posiada instalację wentylacji z odzyskiem ciepła oraz zmodyfikowane grubości izolacji fundamentów,podłóg,ścian, stropów i dachu.
1.1 PRZEDSIONEK 5.2
1.2 HALL 13.6
1.3 POKÓJ DZIENNY 34.7
1.4 KUCHNIA 12.3
1.5 SPIŻARNIA 2.3
1.6 WC 2.0
1.7 ŁAZIENKA 8.0
1.8 SYPIALNIA 2 OS. 19.8
1.9 POM. GOSP. 8.1
1.10GARAŻ 2 ST. 45.0
PU. PARTERU BEZ GARAŻU 106.0
RAZEM PU. PARTERU 151.0