PROPOZYCJE MATRIAŁOWE ZASTOSOWANE W PROJEKCIE (TECHNOLOGIA BUDOWY)
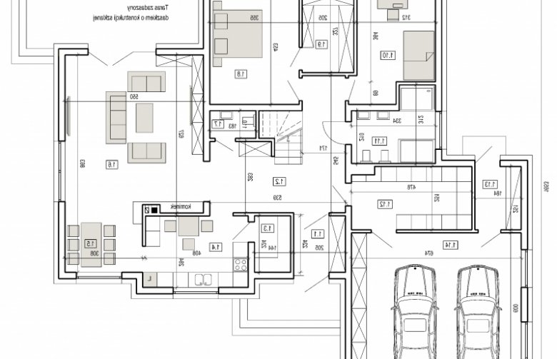
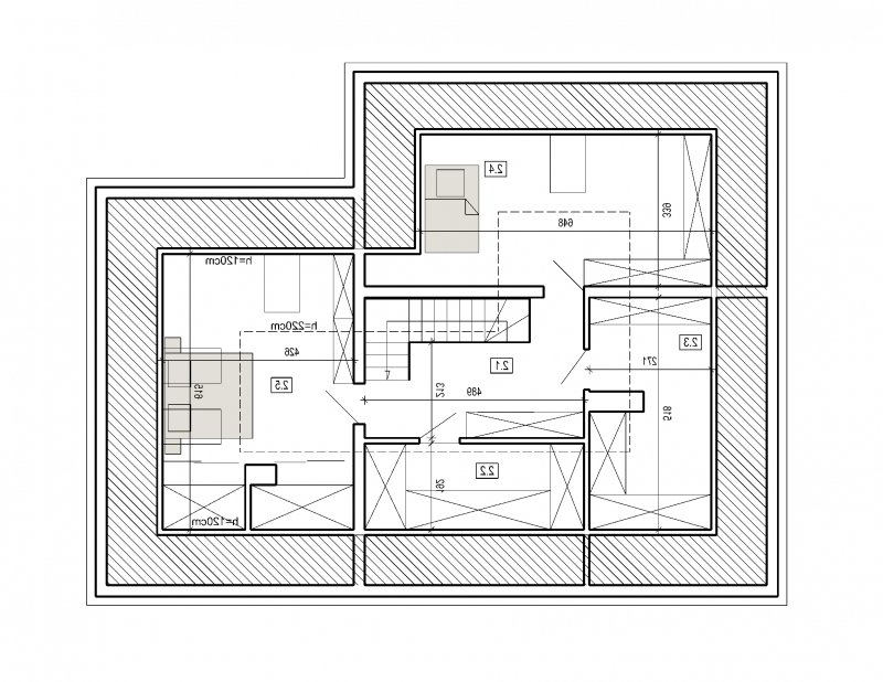
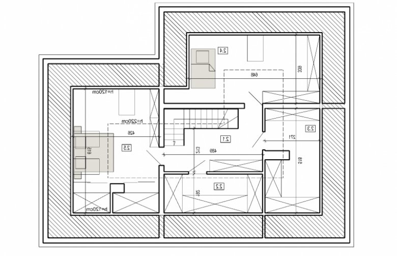
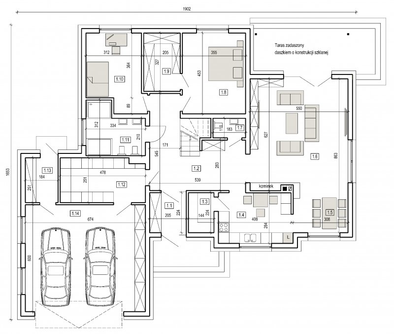
dom parterowy z poddaszem użytkowym, możliwym do późniejszej adaptacji. parter został podzielony na strefę dzienną z salonem, kuchnią i jadalnią oraz część nocną, składającą się z dwóch sypialni, łazienki i garderoby.część nocną można całkowicie oddzielić od strefy dziennej. na poddaszu zlokalizowano dwie sypialnie z pomieszczeniami pomocniczymi. ustawienie pomieszczeń na poddaszu jest w zasadzie do dowolnej aranżacji. dom posiada wbudowany garaż na 2 samochody osobowe oraz dość duże pomieszczenie gospodarcze.
energooszczędność:
wersja standardowa:
projekt spełnia wymagania cieplne dla nowo projektowanych domów określone w wt2008 ( rozporządzenie ministra infrastruktury dotyczące "warunków technicznych ,jakim powinny odpowiadać budynki i ich usytuowanie )
charakterystyka energetyczna w granicach 120 [kwh/m2/rok]
wersja energooszczędna:
projekt dostępny w wersji energooszczędnej .czas realizacji zamówienia 10dni.
charakterystyka energetyczna w granicach 75 [kwh/m2/rok]
projekt w tej wersji posiada instalację wentylacji z odzyskiem ciepła oraz zmodyfikowane grubości izolacji fundamentów,podłóg,ścian, stropów i dachu.