ściany zewnętrzne tradycyjne murowane dwuwarstwowe – pustak ceramiczny 25cm i styropian.
strop gęstożebrowy
schody monolityczne
dach o konstrukcji drewnianej z pokryciem z dachówki ceramicznej, cementowej lub blachodachówki
To dom wolnostojący o zwartej, prostej bryle i dwuspadowym dachu. Połączenie sprawdzonych rozwiązań oraz brak elementów komplikujących wykonawstwo, jak lukarny czy wykusze sprawia, że budynek jest niedrogi i nietrudny w budowie. Natomiast zwarta forma obiektu będzie miała korzystny wpływ na późniejszą jego eksploatację – zwłaszcza na obniżenie kosztów ogrzewania.
Domidea 53 przykuwa uwagę nie tylko zgrabną bryłą o wyważonych proporcjach, ale także sposobem wykończenia. Pięknie skomponowano tutaj szare pokrycie dachu z ceramiczną okładziną elewacyjną utrzymaną w zbliżonym kolorze i elementami drewnianymi. Budynek w efekcie prezentuje się bardzo przytulnie i elegancko. Całość dopełniają duże, efektowne i znakomicie rozmieszczone przeszklenia.
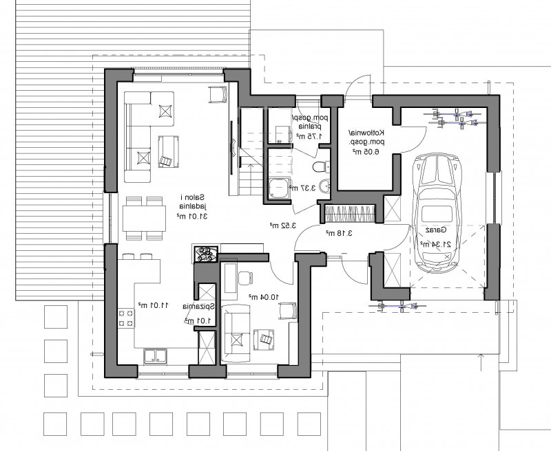
W projekcie Domidea 53 zawarto jednostanowiskowy garaż, przy którym wydzielono kotłownię z wyjściem wprost do ogrodu. Duża kotłownia pozwala na zastosowanie dowolnego sposobu opału.
Mieszkanie zostało połączone z garażem za pośrednictwem wiatrołapu. W holu w pobliżu strefy wejściowej zaplanowano osobny pokój, a z drugiej strony – łazienkę z kabiną prysznicową oraz dostępną z niej pralnię. Wyjście do ogrodu z tego pomieszczenia prowadzi na podest, oddzielony od części dziennej uskokiem ściany. Dzięki usytuowaniu pralni bezpośrednio pod łazienką na poddaszu istnieje możliwość wykonania systemu zrzutu na brudną bieliznę.
Najważniejszym i najbardziej reprezentacyjnym wnętrzem w domu Domidea 53 jest salon z jadalnią - jasne i przestronne pomieszczenie z zewnętrznym przedłużeniem w postaci rozległego tarasu, który z dwóch stron okala budynek. Kuchnia jest częściowo otwarta, wyposażona w spiżarnię. Centralne usytuowanie kominka umożliwia rozprowadzenie ciepła do ogrzewania domu.
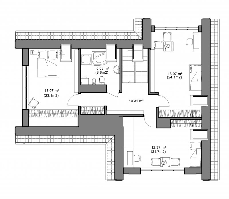
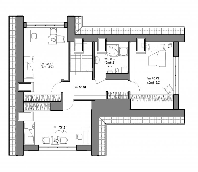
Doświetlone oknem połaciowym i otwarte na salon schody stanowią dodatkowy element dekoracyjny. Na poddaszu znajdują się trzy wygodne sypialnie. Każda z nich - oprócz okien połaciowych - posiada także klasyczne przeszklenia. Pomiędzy pokojami zaplanowano ogólnodostępną łazienkę. W domu przewidziano dużo miejsca na wnęki szafowe.