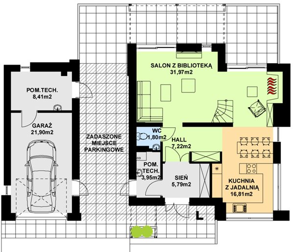
Dane techniczne
- Powierzchnia użytkowa 124.74 m²
- Powierzchnia zabudowy 162.19 m²
- Kubatura 730.00 m³
- Kąt nachylenia dachu 35.00°
- Wysokość budynku 7.78 m
- Min. wymiary działki 24.60x18.45 m
- Garaż 21.90 m²
- Pracownia Architeka
Technologia budowy
ELEWACJE tynk strukturalny plus okładzina elewacyjna
STROP Teriva
ŚCIANY WEWNĘTRZNE bloczki gazobetonowe lub pustak ceramiczny / cegła dziurawka
ŚCIANY ZEWNĘTRZNE bloczki gazobetonowe lub pustak ceramiczny + ocieplenie styropian
POKRYCIE DACHU panele dachowe z blachy na rąbek stojący
Opis
Nastrojowy dom łączący tradycję z nowoczesnością. Wysoki na dwie kondygnacje salon zapewnia poczucie przestrzeni w strefie dziennej. Na parterze znajduje się m.in. biblioteka z kominkiem, połączona zarówno z salonem jak i z jadalnią. Poddasze mieści dwa pokoje dzieci, ze wspólnym tarasem, łazienkę oraz sypialnię rodziców wyposażoną we własną garderobę oraz łazienkę.
Dostępna wersja projektu z wentylacją mechaniczną w cenie 2990,00zł
Dbamy o swoich Klientów, jak nikt inny!
Do każdego projektu zakupionego za pośrednictwem serwisu kreoDOM.pl otrzymasz książeczkę z rabatami na zakupy w firmach Komfort, Fachowiec, Domino Łazienki, Komandor, Witek Home i innych. Książeczka na pewno okaże się przydatna podczas urządzania Twojego wymarzonego domu!
Książeczka z rabatami do takich firm jak: Komfort, Domino Łazienki, Fachowiec, Vox, Komandor, Witek Home i innych
Gwarancja
bezpiecznych zakupów
Dodatkowe pakiety projektowe
- Kosztorys inwestorski bezpłatnie
- Dodatkowy egzemplarz projektu 250,00 zł