Dane techniczne
- Powierzchnia użytkowa 127.99 m²
- Powierzchnia zabudowy 124.90 m²
- Kubatura 388.93 m³
- Kąt nachylenia dachu 40.00°
- Powierzchnia dachu 185.90 m²
- Wysokość budynku 7.99 m
- Min. wymiary działki 22.90x15.80 m
- Garaż 20.21 m²
- Pracownia Domidea
Technologia budowy
Ściany zewnętrzne tradycyjne murowane dwuwarstwowe – pustak ceramiczny 25cm i styropian.
Strop gęstożebrowy. Schody monolityczne. Dach o konstrukcji drewnianej z pokryciem z dachówki ceramicznej, cementowej lub blachodachówki.
Opis
Wygodny, 5-pokojowy dom z poddaszem użytkowym. Na parterze znajduje się przestronny salon połączony z kuchnią oraz 11-metrowy pokój. Oprócz tego zaprojektowane jest także pomieszczenie przeznaczone na kotłownię, przez które jest przejście do jednostanowiskowego garażu.
Na piętrze znajdują się trzy sypialnie, największa z nich połączona jest z garderobą i własną łazienką.
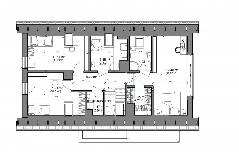
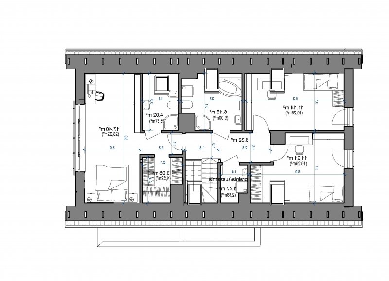
Rzuty
- wiatrołap 2,7 m2
- hall 5,52 m2
- pokój dzienny 30 m2
- kuchnia 10,87 m2
- spiżarnia 1,29 m2
- łazienka 3,86 m2
- pokój 11 m2
- kotłownia 7,2 m2
- garaż jednostanowiskowy 20,21 m2
- korytarz 8,32 m2
- pomieszczenie gospodarcze 1,47 m2
- pokój 11,21 m2
- pokój 11,14 m2
- łazienka 6,15 m2
- łazienka 4,02 m2
- pokój 17,4 m2
- garderoba 3,05 m2
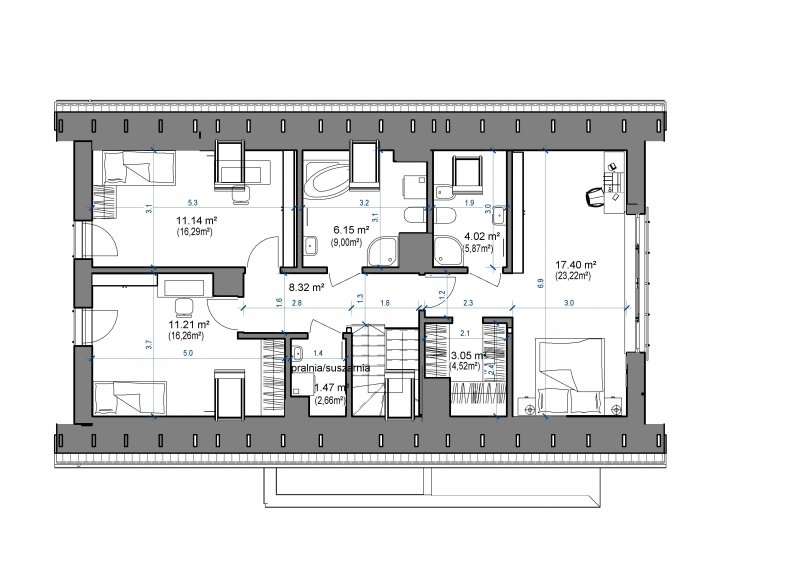
Rzuty
- wiatrołap 2,7 m2
- hall 5,52 m2
- pokój dzienny 30 m2
- kuchnia 10,87 m2
- spiżarnia 1,29 m2
- łazienka 3,86 m2
- pokój 11 m2
- kotłownia 7,2 m2
- garaż jednostanowiskowy 20,21 m2
- korytarz 8,32 m2
- pomieszczenie gospodarcze 1,47 m2
- pokój 11,21 m2
- pokój 11,14 m2
- łazienka 6,15 m2
- łazienka 4,02 m2
- pokój 17,4 m2
- garderoba 3,05 m2
Dbamy o swoich Klientów, jak nikt inny!
Do każdego projektu zakupionego za pośrednictwem serwisu kreoDOM.pl otrzymasz książeczkę z rabatami na zakupy w firmach Komfort, Fachowiec, Domino Łazienki, Komandor, Witek Home i innych. Książeczka na pewno okaże się przydatna podczas urządzania Twojego wymarzonego domu!
Książeczka z rabatami do takich firm jak: Komfort, Domino Łazienki, Fachowiec, Vox, Komandor, Witek Home i innych
Gwarancja
bezpiecznych zakupów
Dodatkowe pakiety projektowe