Dane techniczne
- Powierzchnia użytkowa 112.85 m²
- Powierzchnia zabudowy 124.90 m²
- Kubatura 351.30 m³
- Kąt nachylenia dachu 40.00°
- Powierzchnia dachu 147.40 m²
- Wysokość budynku 7.99 m
- Min. wymiary działki 21.90x15.80 m
- Garaż 20.14 m²
- Pracownia Domidea
Technologia budowy
Ściany zewnętrzne tradycyjne murowane dwuwarstwowe – pustak ceramiczny 25cm i styropian.
Strop gęstożebrowy. Schody monolityczne. Dach o konstrukcji drewnianej z pokryciem z dachówki ceramicznej, cementowej lub blachodachówki.
Opis
Projekt domu z poddaszem Domidea 60G z garażem 1-st., dachem dwuspadowym oraz tarasem i wykuszem.
Rzuty
- wiatrołap 2,70 m2
- hall 5,53 m2
- pokój dzienny 30 m2
- kuchnia 10,87 m2
- spiżarnia 1,29 m2
- łazienka 3,86 m2
- pokój 11 m2
- kotłownia 7,32 m2
- garaż jednostanowiskowy 20,14 m2
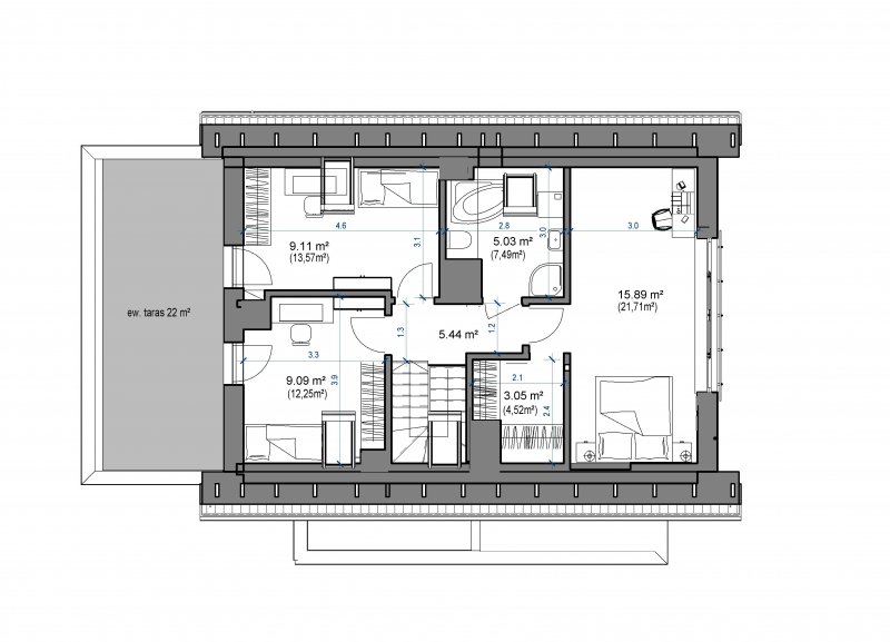
- korytarz 5,44 m2
- garderoba 3,05 m2
- pokój 15,89 m2
- łazienka 5,03 m2
- pokój 9,11 m2
- pokój 9,09 m2
Rzuty
- wiatrołap 2,70 m2
- hall 5,53 m2
- pokój dzienny 30 m2
- kuchnia 10,87 m2
- spiżarnia 1,29 m2
- łazienka 3,86 m2
- pokój 11 m2
- kotłownia 7,32 m2
- garaż jednostanowiskowy 20,14 m2
- korytarz 5,44 m2
- garderoba 3,05 m2
- pokój 15,89 m2
- łazienka 5,03 m2
- pokój 9,11 m2
- pokój 9,09 m2
Dbamy o swoich Klientów, jak nikt inny!
Do każdego projektu zakupionego za pośrednictwem serwisu kreoDOM.pl otrzymasz książeczkę z rabatami na zakupy w firmach Komfort, Fachowiec, Domino Łazienki, Komandor, Witek Home i innych. Książeczka na pewno okaże się przydatna podczas urządzania Twojego wymarzonego domu!
Książeczka z rabatami do takich firm jak: Komfort, Domino Łazienki, Fachowiec, Vox, Komandor, Witek Home i innych
Gwarancja
bezpiecznych zakupów
Dodatkowe pakiety projektowe