Dane techniczne
- Powierzchnia użytkowa 198.10 m²
- Powierzchnia zabudowy 152.30 m²
- Kubatura 970.00 m³
- Kąt nachylenia dachu 42.00°
- Wysokość budynku 9.10 m
- Min. wymiary działki 27.60x22.10 m
- Pracownia Archeton
Technologia budowy
Wersja Technologiczna: murowana – beton komórkowy;
Ściany Zewnętrzne: beton komórkowy „biały” TERMOBLOQ gr. 24 cm + docieplenie (wełna lub styropian) gr. 20 cm;
Ściany Wewnętrzne: beton komórkowy „biały” TERMOBLOQ gr. 24 cm, działowe: beton komórkowy „biały” TERMOBLOQ gr. 12 cm;
Strop: lekki strop panelowy Smart firmy KONBET;
Konstrukcja Dachu: drewniana, jętkowa;
Rodzaj Schodow: żelbetowe;
Pokrycie Dachu: dachówka betonowa lub ceramiczna BRAAS;
Elewacje: tynki firmy SICHER BAUTECHNIK, częściowo okładzina z deskowania poziomego oraz płytek elewacyjnych;
Typ Ogrzewania: kocioł na gaz;
Opis
Dom parterowy, z użytkowym poddaszem, podpiwniczony, z garażem dwustanowiskowym.
Rzuty
PARTER
- pokój dzienny 35.2 m2
- kuchnia 15.8 m2
- sypialnia 12.0 m2
- jadalnia 9.8 m2
- hol 9.2 m2
- korytarz 6.6 m2
- łazienka 5.9 m2
- garderoba 5.3 m2
- łazienka 4.4 m2
- spiżarka 2.3 m2
- klatka schodowa 0.0 m2
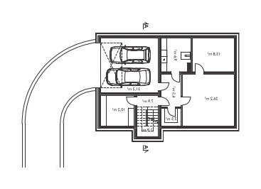
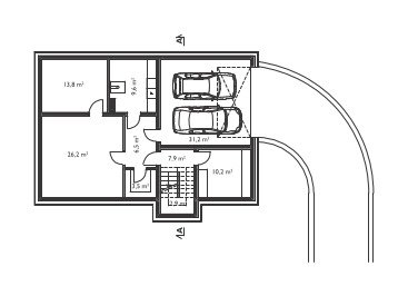
PIWNICA
- garaż 0.0 m2
- spiżarka 0.0 m2
- pomieszczenie pomocnicze 0.0 m2
- kotłownia 0.0 m2
- klatka schodowa 0.0 m2
- schowek 0.0 m2
- korytarz 0.0 m2
- pomieszczenie gospodarcze 0.0 m2
- pomieszczenie gospodarcze 0.0 m2
PODDASZE
- sypialnia 18.9 m2
- pokój 15.8 m2
- pokój 15.4 m2
- pokój 13.9 m2
- przedpokój 11.4 m2
- łazienka 7.9 m2
- łazienka 5.4 m2
- klatka schodowa 0.0 m2
Rzuty
PARTER
- pokój dzienny 35.2 m2
- kuchnia 15.8 m2
- sypialnia 12.0 m2
- jadalnia 9.8 m2
- hol 9.2 m2
- korytarz 6.6 m2
- łazienka 5.9 m2
- garderoba 5.3 m2
- łazienka 4.4 m2
- spiżarka 2.3 m2
- klatka schodowa 0.0 m2
PIWNICA
- garaż 0.0 m2
- spiżarka 0.0 m2
- pomieszczenie pomocnicze 0.0 m2
- kotłownia 0.0 m2
- klatka schodowa 0.0 m2
- schowek 0.0 m2
- korytarz 0.0 m2
- pomieszczenie gospodarcze 0.0 m2
- pomieszczenie gospodarcze 0.0 m2
PODDASZE
- sypialnia 18.9 m2
- pokój 15.8 m2
- pokój 15.4 m2
- pokój 13.9 m2
- przedpokój 11.4 m2
- łazienka 7.9 m2
- łazienka 5.4 m2
- klatka schodowa 0.0 m2
Dbamy o swoich Klientów, jak nikt inny!
Do każdego projektu zakupionego za pośrednictwem serwisu kreoDOM.pl otrzymasz książeczkę z rabatami na zakupy w firmach Komfort, Fachowiec, Domino Łazienki, Komandor, Witek Home i innych. Książeczka na pewno okaże się przydatna podczas urządzania Twojego wymarzonego domu!
Książeczka z rabatami do takich firm jak: Komfort, Domino Łazienki, Fachowiec, Vox, Komandor, Witek Home i innych
Gwarancja
bezpiecznych zakupów
Dodatkowe pakiety projektowe
- Kosztorys inwestorski 90,00 zł - 249,00 zł
- Dodatkowy egzemplarz projektu 123,00 zł
- Kotłownia na paliwo stałe zapytaj o dostępność