Wersja Technologiczna: murowana – beton komórkowy;
Ściany Zewnętrzne: bloczki SOLBET Optimal gr. 24cm + dociepelenie płyty FASROCK MAX gr. 20cm;
Ściany Wewnętrzne: bloczki SOLBET Optimal gr. 24cm i 12cm;
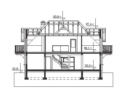
Strop: żelbetowy;
Konstrukcja Dachu: drewniana, jętkowa;
Rodzaj Schodow: żelbetowe;
Pokrycie Dachu: dachówka cementowa BRAAS;
Elewacje: tynki silikonowe, silikatowe oraz tynki mineralne BOLIX;
Typ Ogrzewania: kocioł na gaz;
Koszty
Całkowity: 443698.00 zł
Fundamenty: 49116.00 zł
Stan Surowy: 214229.00 zł
Stolarka: 16567.00 zł
Stan Zamknięty: 230796.00 zł
Stan Wykończony: 443698.00 zł
Wycena według poziomu cen z: II kwartał 2011 r.
Harmonijnie zbudowana, elegancka, tradycyjna w stylistyce sylwetka zwraca uwagę w projekcie domu Leda Rex wśród propozycji średniej wielkości domów z użytkowym poddaszem, bez garażu. Podobnie jak zbliżone: Leda i Rezeda ma czterospadowy dach z lukarnami w każdej połaci oraz z balkonami. Konsekwentnie symetryczny jest plan budynku podzielony na trzy trakty konstrukcyjne. Centralny, ze strefą wejściową i trójbiegową klatką schodową wysuwa się salonem w ryzalicie w głąb ogrodu. Od frontu akcentuje go podcień na słupach niosących łazienkę poddasza z jedynym półkolistym oknem. Od ogrodu ryzalit wieńczy największa lukarna głównej sypialni poddasza. Dwie węższe części parteru mieszczą: po jednej stronie kuchnię z jadalnią w otwartej kompozycji pokoju dziennego, a po drugiej - dodatkowy pokój i sporą kotłownię dostępną ze schowka pod schodami. Sień obejmują z obu stron spiżarnia i mała łazienka. Ten trójdzielny rozkład w projekcie domu Leda Rex powtarza strefa nocna na drugiej półkondygnacji z trzema pokojami dla czterech osób oraz z kombinacją dwóch łazienek i garderoby. Pomieszczenia te mają charakterystyczne wnętrza ze skosami, wygodne dzięki lukarnom.