Dane techniczne
- Powierzchnia użytkowa 186.69 m²
- Powierzchnia zabudowy 176.50 m²
- Kubatura 810.00 m³
- Kąt nachylenia dachu 45.00°
- Powierzchnia dachu 328.50 m²
- Wysokość budynku 8.80 m
- Min. wymiary działki 18.12x31.69 m
- Garaż 42.40 m²
- Pracownia LK & Projekt
Technologia budowy
- Okna i drzwi balkonowe: aluminiowe
- Sposób ogrzewania: kocioł na gaz
- Wentylacja: mechaniczna z rekuperacją
- Ściany wewnętrzne: z pustaków ceramicznych 'Porotherm P+W' gr. 25, 11.5 cm firmy Wienerberger
- Strop: żelbetowy
- Konstrukcja dachu: drewniana docieplona wełną mineralną gr. 30 cm firmy Rockwool
- Pokrycie dachu: dachówką ceramiczną 'Koramic' firmy 'Wienerberger', Reńska Cosmo 11
- Elewacje: wykończone tynkiem silikonowym oraz cegłą klinkierową Terca Karpatia firmy Wienerberger
- Ławy fundamentowe: żelbetowe
- Ściany fundamentowe: z pustaków szalunkowych o gr.30 cm, ocieplone styropianem 'Gold fundament' o gr.20 cm firmy Termo Organika
- Ściany zewnętrzne: z pustaków ceramicznych 'Porotherm 30 P+W' firmy Wienerberger, ocieplone styropianem 'Gold Fasada' gr. 20 cm firmy Termo Organika; częściowo: z pustaków ceramicznych 'Porotherm P+W' o gr. 25 cm firmy Wienerberger ocieplone wełną mineralną o gr. 16 cm
- Koszt orientacyjny (bez Vat): 483 813.00 zł.
Opis
Nowoczesny dom z poddaszem, posiadający garaż z miejscem na dwa samochody.
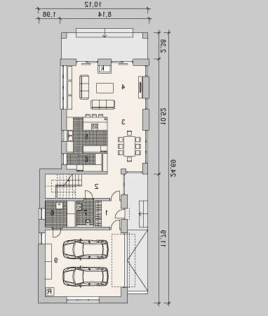
Rzuty
PARTER
Parter
1. Sień 5.69m
2. Hall 10.08m
3. Jadalnia 10.66m
4. Pokój dzienny 32.76m
5. Kuchnia 11.81m
6. Spiżarka 5.07m
7. WC 3.79m
8. Kotłownia 6.33m
9. Garaż 42.40m
PODDASZE
Poddasze
1. Hall (15.27) 14.60m
2. Pokój wypoczynkowy (17.71) 14.53m
3. Garderoba (4.35) 3.37m
4. Sypialnia (27.14) 22.41m
5. Garderoba 2 (3.90) 2.92m
6. Łazienka (10.80) 8.20m
7. Pralnia (5.85) 4.36m
8. Łazienka 2 (7.23) 5.54m
9. Sypialnia 2 (24.98) 20.33m
10. Sypialnia 3 (13.83) 10.57m
Rzuty
PARTER
Parter
1. Sień 5.69m
2. Hall 10.08m
3. Jadalnia 10.66m
4. Pokój dzienny 32.76m
5. Kuchnia 11.81m
6. Spiżarka 5.07m
7. WC 3.79m
8. Kotłownia 6.33m
9. Garaż 42.40m
PODDASZE
Poddasze
1. Hall (15.27) 14.60m
2. Pokój wypoczynkowy (17.71) 14.53m
3. Garderoba (4.35) 3.37m
4. Sypialnia (27.14) 22.41m
5. Garderoba 2 (3.90) 2.92m
6. Łazienka (10.80) 8.20m
7. Pralnia (5.85) 4.36m
8. Łazienka 2 (7.23) 5.54m
9. Sypialnia 2 (24.98) 20.33m
10. Sypialnia 3 (13.83) 10.57m
Dbamy o swoich Klientów, jak nikt inny!
Do każdego projektu zakupionego za pośrednictwem serwisu kreoDOM.pl otrzymasz książeczkę z rabatami na zakupy w firmach Komfort, Fachowiec, Domino Łazienki, Komandor, Witek Home i innych. Książeczka na pewno okaże się przydatna podczas urządzania Twojego wymarzonego domu!
Książeczka z rabatami do takich firm jak: Komfort, Domino Łazienki, Fachowiec, Vox, Komandor, Witek Home i innych
Gwarancja
bezpiecznych zakupów
Dodatkowe pakiety projektowe
- Kosztorys inwestorski cena ustalana indywidualnie
- Kolektory słoneczne cena ustalana indywidualnie
- Kominek z DGP cena ustalana indywidualnie
- Wentylacja mechaniczna z rekuperacją cena ustalana indywidualnie
- Pompa ciepła cena ustalana indywidualnie