Dane techniczne
- Powierzchnia użytkowa 212.79 m²
- Powierzchnia zabudowy 276.95 m²
- Kubatura 772.14 m³
- Kąt nachylenia dachu 45.00°
- Powierzchnia dachu 232.12 m²
- Wysokość budynku 9.90 m
- Min. wymiary działki 29.40x21.50 m
- Garaż 54.60 m²
- Pracownia LK & Projekt
Technologia budowy
- Okna i drzwi balkonowe: PVC
- Sposób ogrzewania: pompa ciepła, ogrzewanie podłogowe
- Wentylacja: mechaniczna z rekuperacją
- Elewacje: wykończone tynkiem silikonowym,okładziną kamienną i drewnianą
- Ściany wewnętrzne: z pustaków ceramicznych 'Porotherm' gr. 25, 11.5 cm firmy Wienerberger
- Strop: żelbetowy
- Konstrukcja dachu: drewniana, ocieplona wełną mineralną o gr.30 cm firmy Rockwool
- Pokrycie dachu: dachówką ceramiczną 'Koramic' firmy Wienerberger, Karpiówką
- Ściany zewnętrzne: z pustaków ceramicznych 'Porotherm 44 Si' firmy Wienerberger ocieplone styropianem 'Platinum fasada' o gr.6 cm
- Ławy fundamentowe: betonowe
- Ściany fundamentowe: z bloczków betonowych o gr.30 i 25 cm, ocieplone styropianem 'Gold fundament' firmy Termo Organika o gr. 14 cm
- Koszt orientacyjny (bez Vat): 630 255.00 zł.
Opis
Dom jednorodzinny, parterowy, z poddaszem użytkowym.
Rzuty
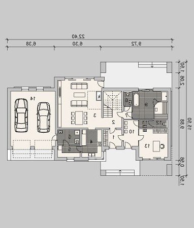
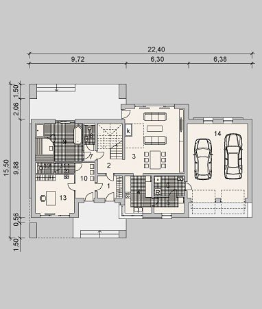
PARTER
PARTER
1. Sień 5.62m
2. Hall 6.57m
3. Pokój dzienny z jadalnią 39.35m
4. Kuchnia 10.12m
5. Spiżarka 4.88m
6. Kotłownia 6.21m
7. Korytarz 1.87m
8. WC 2.18m
9. Sauna 18.18m
10. Komunikacja 7.11m
11. Przedsionek 2.07m
12. WC 2 2.07m
13. Gabinet 15.09m
14. Garaż 45.75m
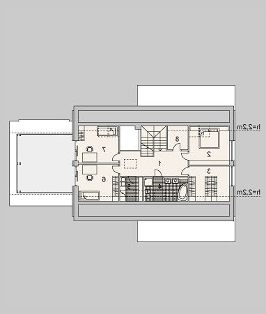
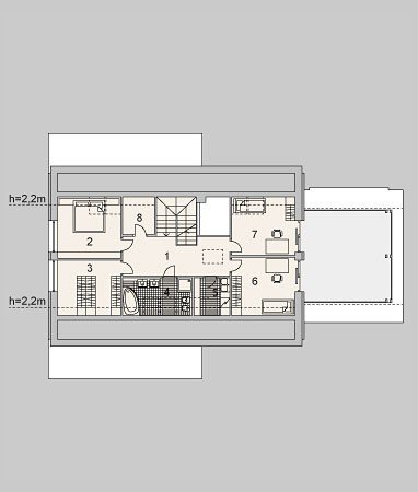
PODDASZE
PODDASZE
1. Hall (16.16) 16.16m
2. Sypialnia (15.54) 14.53m
3. Garderoba (14.00) 12.99m
4. Łazienka (10.46) 9.33m
5. Pralnia (5.41) 4.83m
6. Sypialnia 2 (14.77) 13.75m
7. Sypialnia 3 (14.77) 13.75m
8. Pomieszczenie gospodarcze (4.82) 4.30m
Rzuty
PARTER
PARTER
1. Sień 5.62m
2. Hall 6.57m
3. Pokój dzienny z jadalnią 39.35m
4. Kuchnia 10.12m
5. Spiżarka 4.88m
6. Kotłownia 6.21m
7. Korytarz 1.87m
8. WC 2.18m
9. Sauna 18.18m
10. Komunikacja 7.11m
11. Przedsionek 2.07m
12. WC 2 2.07m
13. Gabinet 15.09m
14. Garaż 45.75m
PODDASZE
PODDASZE
1. Hall (16.16) 16.16m
2. Sypialnia (15.54) 14.53m
3. Garderoba (14.00) 12.99m
4. Łazienka (10.46) 9.33m
5. Pralnia (5.41) 4.83m
6. Sypialnia 2 (14.77) 13.75m
7. Sypialnia 3 (14.77) 13.75m
8. Pomieszczenie gospodarcze (4.82) 4.30m
Dbamy o swoich Klientów, jak nikt inny!
Do każdego projektu zakupionego za pośrednictwem serwisu kreoDOM.pl otrzymasz książeczkę z rabatami na zakupy w firmach Komfort, Fachowiec, Domino Łazienki, Komandor, Witek Home i innych. Książeczka na pewno okaże się przydatna podczas urządzania Twojego wymarzonego domu!
Książeczka z rabatami do takich firm jak: Komfort, Domino Łazienki, Fachowiec, Vox, Komandor, Witek Home i innych
Gwarancja
bezpiecznych zakupów
Dodatkowe pakiety projektowe
- Kosztorys inwestorski cena ustalana indywidualnie
- Kolektory słoneczne cena ustalana indywidualnie
- Kominek z DGP cena ustalana indywidualnie
- Wentylacja mechaniczna z rekuperacją cena ustalana indywidualnie
- Pompa ciepła cena ustalana indywidualnie