Dane techniczne
- Powierzchnia użytkowa 174.06 m²
- Powierzchnia zabudowy 170.03 m²
- Kubatura 1063.00 m³
- Kąt nachylenia dachu 40.00°
- Wysokość budynku 8.47 m
- Min. wymiary działki 27.10x19.65 m
- Garaż 32.29 m²
- Pracownia Archetyp
Technologia budowy
Dach: dachówka lub blachodachówka
Elewacje: tynk, płytka elewacyjna
Strop: żelbetowy
Ściany wewnętrzne: murowane
Ściany zewnętrzne: dwuwarstwowe, pustak ceramiczny, docieplony styropianem
Opis
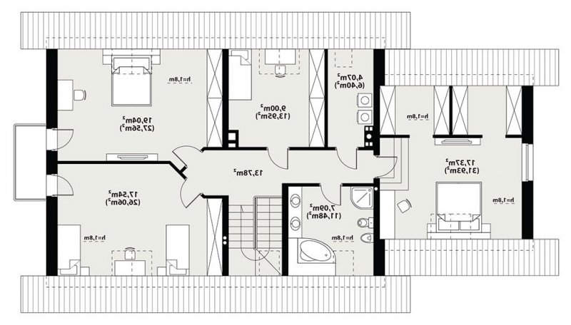
Dom jednorodzinny, parterowy z użytkowym poddaszem, z dwustanowiskowym garażem.W prostej bryle przykrytej dwuspadowym dachem zamknięto przestronne i funkcjonalne wnętrze. Obniżony strop nad garażem wydatnie powiększa przestrzeń w sypialni rodziców, która jest funkcjonalnie odizolowana od pokoi dzieci. Daje to poczucie spokoju oraz intymności. W domu przewidziano miejsce na spiżarnię i pralnię. Kotłownia dostępna zarówno z garażu jak i z zewnątrz.
Dbamy o swoich Klientów, jak nikt inny!
Do każdego projektu zakupionego za pośrednictwem serwisu kreoDOM.pl otrzymasz książeczkę z rabatami na zakupy w firmach Komfort, Fachowiec, Domino Łazienki, Komandor, Witek Home i innych. Książeczka na pewno okaże się przydatna podczas urządzania Twojego wymarzonego domu!
Książeczka z rabatami do takich firm jak: Komfort, Domino Łazienki, Fachowiec, Vox, Komandor, Witek Home i innych
Gwarancja
bezpiecznych zakupów
Dodatkowe pakiety projektowe
- Kosztorys inwestorski 250,00 zł