Dane techniczne
- Powierzchnia użytkowa 122.33 m²
- Powierzchnia zabudowy 97.29 m²
- Kubatura 635.00 m³
- Kąt nachylenia dachu 45.00°
- Wysokość budynku 9.05 m
- Min. wymiary działki 18.75x17.05 m
- Pracownia Architeka
Technologia budowy
ELEWACJE tynk strukturalny
STROP Teriva
ŚCIANY WEWNĘTRZNE bloczki gazobetonowe lub pustak ceramiczny / cegła dziurawka
ŚCIANY ZEWNĘTRZNE bloczki gazobetonowe lub pustak ceramiczny + ocieplenie styropian
POKRYCIE DACHU dachówka ceramiczna lub blachodachówka
Opis
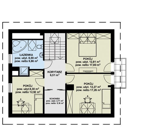
Dom wyróżnia się wyraźnym podziałem na strefę dzienną (parter), dostępną dla domowników i dla gości oraz strefę nocną (piętro), o bardziej kameralnym charakterze. Na parterze poza kuchnią i salonem otwartym na ogród zaproponowaliśmy przestronny pokój gościnny z łazienką. Na piętrze znajdują się trzy przytulne sypialnie pod spadzistym dachem, dużą, wygodną łazienkę oraz pomieszczenie pomocnicze, które doskonale sprawdzi się jako schowek lub garderoba.
Dbamy o swoich Klientów, jak nikt inny!
Do każdego projektu zakupionego za pośrednictwem serwisu kreoDOM.pl otrzymasz książeczkę z rabatami na zakupy w firmach Komfort, Fachowiec, Domino Łazienki, Komandor, Witek Home i innych. Książeczka na pewno okaże się przydatna podczas urządzania Twojego wymarzonego domu!
Książeczka z rabatami do takich firm jak: Komfort, Domino Łazienki, Fachowiec, Vox, Komandor, Witek Home i innych
Gwarancja
bezpiecznych zakupów
Dodatkowe pakiety projektowe
- Kosztorys inwestorski bezpłatnie
- Dodatkowy egzemplarz projektu 250,00 zł