Dane techniczne
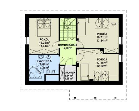
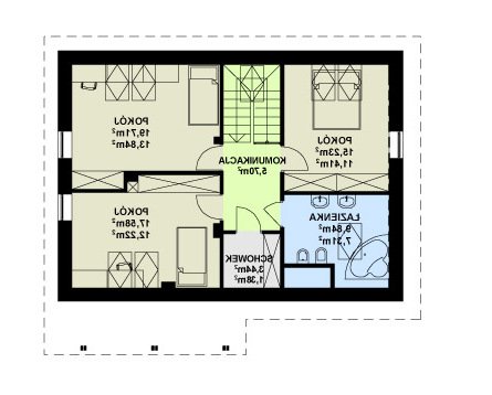
- Powierzchnia użytkowa 121.80 m²
- Powierzchnia zabudowy 96.03 m²
- Kubatura 581.00 m³
- Kąt nachylenia dachu 40.00°
- Wysokość budynku 8.15 m
- Min. wymiary działki 19.50x18.01 m
- Pracownia Architeka
Technologia budowy
ŚCIANY WEWNĘTRZNE bloczki gazobetonowe lub pustak ceramiczny / cegła dziurawka
ŚCIANY ZEWNĘTRZNE bloczki gazobetonowe lub pustak ceramiczny + ocieplenie styropian
STROP Teriva
POKRYCIE DACHU dachówka ceramiczna lub blachodachówka
ELEWACJE tynk strukturalny plus okładzina drewniana
Opis
Dom o niezwykle funkcjonalnym wnętrzu. Na niewielkiej powierzchni zmieszczono program użytkowy dla pięcio-, a nawet sześcioosobowej rodziny. Wygodnym udogodnieniem jest wydzielenie na parterze dwóch pokoi z własną łazienką. Mogą służyć one jako domowe biuro, pokoje gościnne lub pomieszczenia mieszkalne dla starszej osoby.
Dbamy o swoich Klientów, jak nikt inny!
Do każdego projektu zakupionego za pośrednictwem serwisu kreoDOM.pl otrzymasz książeczkę z rabatami na zakupy w firmach Komfort, Fachowiec, Domino Łazienki, Komandor, Witek Home i innych. Książeczka na pewno okaże się przydatna podczas urządzania Twojego wymarzonego domu!
Książeczka z rabatami do takich firm jak: Komfort, Domino Łazienki, Fachowiec, Vox, Komandor, Witek Home i innych
Gwarancja
bezpiecznych zakupów
Dodatkowe pakiety projektowe
- Dodatkowy egzemplarz projektu 250,00 zł