0
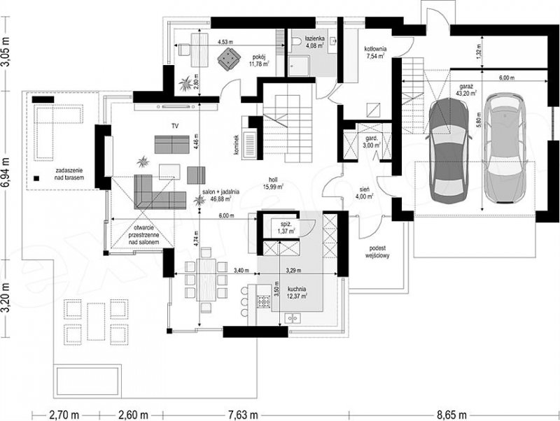
Dom z widokiem 3 jest wariantową wersją popularnego projektu Dom z widokiem. Dom został dość znacznie zmniejszony, jego powierzchnia jest o 30 % mniejsza, podobnie jak koszty realizacji budynku. Jednocześnie dom nie stracił na reprezentacyjnym wyglądzie, ani na programie użytkowym i funkcjonalności wnętrz. Został po prostu „odchudzony” tam, gdzie można było sobie na to pozwolić. W rezultacie powstała elegancka niewielka miejska rezydencja - piętrowa, składająca się z zasadniczej dwukondygnacyjnej i kilku parterowych brył. Dom dedykowany jest w szczególności na trudniejsze działki, z niekorzystną orientacją wjazdu w stosunku do nasłonecznienia - z ogrodem z boku lub przodu domu. Architektura domu to spokojna nowoczesność, z dopasowanymi harmonijnie materiałami wykończeniowymi i detalami. Jedną z głównych atrakcji jest tutaj piękne okno narożne w salonie i pustka z przestrzennym otwarciem na antresolę na piętrze. To zasadniczy fragment kształtujący całość wnętrza domu. Uzupełnieniem są : przeszklony przestronny przedsionek, częściowo otwarta kuchnia oddzielona prostopadłościenną bryłą spiżarni i zabudowy kuchennej, reprezentacyjne schody połączone ze ścianą kominkową.
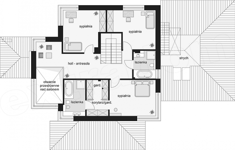
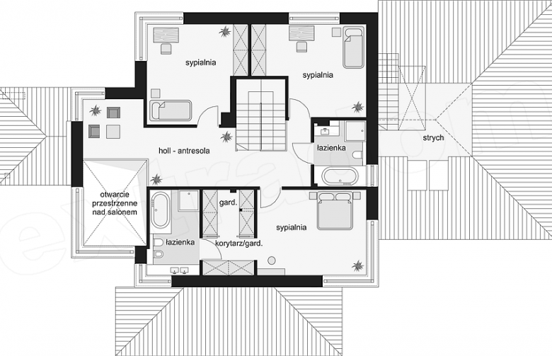
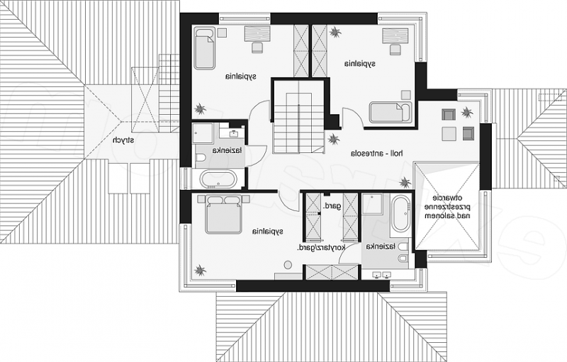
Parter to także jadalnia, dodatkowy pokój (gabinet, lub sypialnia gościnna), łazienka, kotłownia i garaż, z dodatkową przestrzenią magazynowo-gospodarczą i własnym strychem. Na piętrze przewidziano trzy sypialnie, w tym apartament rodziców z własną oddzielną łazienką i garderobą, ogólnodostępną łazienkę i antresolę - bibliotekę. We wnętrzu przewidziano wszystko, co może być potrzebne do komfortowego życia 4-5cioosobowej rodzinie. Dom z widokiem 3, dzięki tarasom i podcieniowi, pięknie łączy się z otaczającym ogrodem. Duże przeszklenia dodatkowo otwierają dom na przyrodę. Dom został zaprojektowany jako energooszczędny ( bardzo łatwo zaadaptować go do standardu NF40 ). Stosunek powierzchni do uzyskanego efektu jest w projekcie bardzo korzystny. Dom będzie niedrogi w eksploatacji, a sama budowa będzie zdecydowanie mniej kosztowna niż w przypadku Dom z widokiem 1. Zapraszamy !