Ściany zewnętrzne 2-warstwowe : Beton komórkowy ( 24cm) / Pustak ceramiczny (25cm) + styropian 20cm Uściany < 0,20 W/(m2*K) – warunek spełniony.
Ławy fundamentowe tradycyjne. Ściany fundamentowe betonowe gr.24(25cm) z bloczków betonowych lub wylewane.
Stropy - płyta żelbetowa . Zamiennie można zastosować strop gęstożeberkowy typu TERIVA.
Konstrukcja dachu - tradycyjna drewniana, pokrycie dachu z dachówki ceramicznej.
Elewacje - pokryte tynkiem strukturalnym cienkowarstwowym.
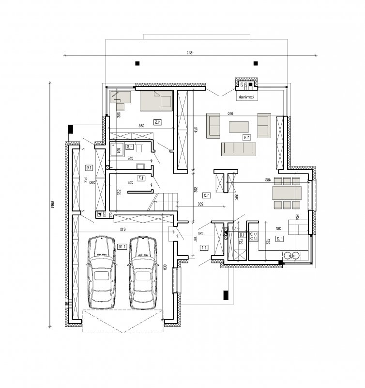
Dom piętrowy w stylu willi miejskiej o współczesnym wyglądzie. Na parterze kuchnia z jadalnią i salon (o powierzchni 30m2) tworzą otwartą przestrzeń,z salonu znajduje się wyjście na duży, zadaszony taras. Schody prowadzące na piętro zostały zaprojektowane jako 2-biegowe w stylu nowoczesnym. Na piętrze znajdują się łącznie 4 sypialnie. Dom posiada wbudowany, wygodny garaż na 2 samochody osobowe o szerokości 6.10m.
Energooszczędność:
Wersja standardowa:
Projekt spełnia wymagania cieplne dla nowo projektowanych domów określone w wt2008 (rozporządzenie ministra infrastruktury dotyczące "warunków technicznych ,jakim powinny odpowiadać budynki i ich usytuowanie)
charakterystyka energetyczna w granicach 120 [kwh/m2/rok]
Wersja energooszczędna:
Projekt dostępny w wersji energooszczędnej. Czas realizacji zamówienia 10dni.
Charakterystyka energetyczna w granicach 75 [kwh/m2/rok]
projekt w tej wersji posiada instalację wentylacji z odzyskiem ciepła oraz zmodyfikowane grubości izolacji fundamentów, podłóg, ścian, stropów i dachu.
1.1 Przedsionek 5.40
1.2 Hall 10.80
1.3 Kuchnia 17.40
1.4 Salon 30.30
1.5 Pokój 12.10
1.6 Łazienka 4.00
1.7 Pom. gospodarcze 7.50
1.8 Garaz 38.10