Dane techniczne
- Powierzchnia użytkowa 83.76 m²
- Powierzchnia zabudowy 90.27 m²
- Kubatura 235.50 m³
- Kąt nachylenia dachu 45.00°
- Powierzchnia dachu 144.93 m²
- Wysokość budynku 7.47 m
- Min. wymiary działki 13.35x7.20 m
- Garaż 43.30 m²
- Pracownia LK & Projekt
Technologia budowy
- Ławy fundamentowe: żelbetowe
- Ściany fundamentowe: betonowe
- Ściany zewnętrzne: z pustaków ceramicznych 'Porotherm' firmy 'Wienerberger' o gr.50 cm
- Ściany wewnętrzne: z pustaków ceramicznych Porotherm gr. 25, 11.5 firmy Wienerberger
- Strop: żelbetowy
- Konstrukcja dachu: drewniana
- Pokrycie dachu: dachówką ceramiczną
- Elewacje: wykończone tynkiem silikonowym
- Okna i drzwi balkonowe: drewniane
- Wentylacja: grawitacyjna
Opis
Wolnostojący garaż z poddaszem użytkowym z miejscem parkingowym dwa samochody.
Rzuty
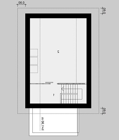
PARTER
Parter
1. Sień: 7.29m
2. Schowek: 0.62m
3. Garaż: 43.30m
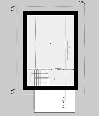
PODDASZE
Poddasze
1. Hall: (7.32) 4.94m
2. Pomieszczenie rekreacyjne: (44.19) 28.23m
Rzuty
PARTER
Parter
1. Sień: 7.29m
2. Schowek: 0.62m
3. Garaż: 43.30m
PODDASZE
Poddasze
1. Hall: (7.32) 4.94m
2. Pomieszczenie rekreacyjne: (44.19) 28.23m
Dbamy o swoich Klientów, jak nikt inny!
Do każdego projektu zakupionego za pośrednictwem serwisu kreoDOM.pl otrzymasz książeczkę z rabatami na zakupy w firmach Komfort, Fachowiec, Domino Łazienki, Komandor, Witek Home i innych. Książeczka na pewno okaże się przydatna podczas urządzania Twojego wymarzonego domu!
Książeczka z rabatami do takich firm jak: Komfort, Domino Łazienki, Fachowiec, Vox, Komandor, Witek Home i innych
Gwarancja
bezpiecznych zakupów
Dodatkowe pakiety projektowe
- Kosztorys inwestorski cena ustalana indywidualnie
- Kolektory słoneczne cena ustalana indywidualnie
- Kominek z DGP cena ustalana indywidualnie
- Wentylacja mechaniczna z rekuperacją cena ustalana indywidualnie
- Pompa ciepła cena ustalana indywidualnie