Dane techniczne
- Powierzchnia użytkowa 168.40 m²
- Powierzchnia zabudowy 227.10 m²
- Kubatura 994.30 m³
- Kąt nachylenia dachu 28.00°
- Wysokość budynku 6.06 m
- Min. wymiary działki 25.00x22.00 m
- Garaż 34.30 m²
- Pracownia MOJ-DOM
Technologia budowy
Ściany:
Projekt dostępny również w technologii szkieletu drewnianego.
Fundamenty: żelbetowe, wylewane
Ściany zewnętrzne: z bali drewnianych gr. 12, 16, 20, 24 cm. ocieplone od wewnątrz wełną mineralną lub 52 cm bez ocieplenia
Ściany piwnic: betonowe wylewane lub z bloczków betonowych
Stropy:
drewniany, żelbetowy nad piwnicą
Wykończenie:
Schody: drewniane
Dach
Pokrycie dachu: dachówka cementowa
Opis
Budynek jednorodzinny, parterowy, podpiwniczony, 5 pokoi, kuchnia z jadalnią
Rzuty
1. pokój dzienny65.4 m2
2. kuchnia14.8 m2
3. gabinet14.0 m2
4. sypialnia13.1 m2
5. łazienka6.4 m2
6. sypialnia14.1 m2
7. komunikacja3.4 m2
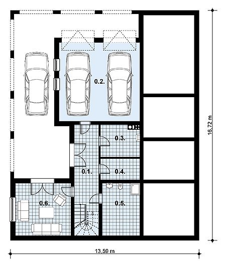
1. komunikacja12.9 m2
2. garaż34.3 m2
3. kotłownia6.5 m2
4. pom. gospodarcze4.9 m2
5. sauna10.0 m2
6. pom. rekreacyjne14.3 m2
Rzuty
1. pokój dzienny65.4 m2
2. kuchnia14.8 m2
3. gabinet14.0 m2
4. sypialnia13.1 m2
5. łazienka6.4 m2
6. sypialnia14.1 m2
7. komunikacja3.4 m2
1. komunikacja12.9 m2
2. garaż34.3 m2
3. kotłownia6.5 m2
4. pom. gospodarcze4.9 m2
5. sauna10.0 m2
6. pom. rekreacyjne14.3 m2
Dbamy o swoich Klientów, jak nikt inny!
Do każdego projektu zakupionego za pośrednictwem serwisu kreoDOM.pl otrzymasz książeczkę z rabatami na zakupy w firmach Komfort, Fachowiec, Domino Łazienki, Komandor, Witek Home i innych. Książeczka na pewno okaże się przydatna podczas urządzania Twojego wymarzonego domu!
Książeczka z rabatami do takich firm jak: Komfort, Domino Łazienki, Fachowiec, Vox, Komandor, Witek Home i innych
Gwarancja
bezpiecznych zakupów
Dodatkowe pakiety projektowe