Dane techniczne
- Powierzchnia użytkowa 165.70 m²
- Powierzchnia zabudowy 225.30 m²
- Kubatura 1201.80 m³
- Kąt nachylenia dachu 35.00°
- Wysokość budynku 7.18 m
- Min. wymiary działki 28.00x25.00 m
- Garaż 47.90 m²
- Pracownia MOJ-DOM
Technologia budowy
Fundamenty: żelbetowe, wylewane
Ściany zewnętrzne: z bali drewnianych gr. 12, 16, 20, 24, 30 cm. ocieplone od wewnątrz wełną mineralną, gr. 52 cm bez ocieplenia
Strop: belkowy, drewniany, otwarty
Schody: drewniane
Pokrycie dachu: gont drewniany
Opis
Budynek jednorodzinny, parterowy, z poddaszem mieszkalnym, podpiwniczony, 5 pokoi, kuchnia, garaż
Rzuty
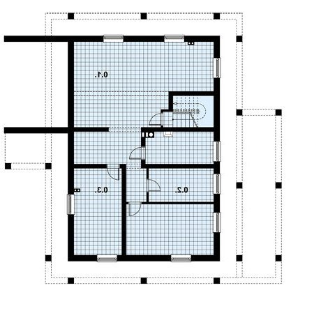
1. Garaż47.9 m2
2. Pom. gosp53.9 m2
3. Kotłownia8.0 m2
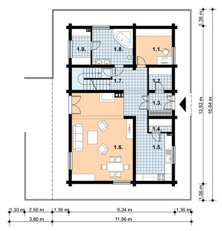
1. Pokój10.3 m2
2. Pom. gosp.4.3 m2
3. Wiatrołap4.3 m2
4. Spiżarka2.2 m2
5. Kuchnia15.1 m2
6. Pokój dzienny38.5 m2
7. Hall15.1 m2
8. Łazienka11.8 m2
9. Pom. gosp.5.1 m2
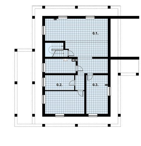
1. Sypialnia18.9 m2
2. Sypialnia16.3 m2
3. Garderoba6.8 m2
4. Garderoba7.9 m2
5. Garderoba8.7 m2
6. Sypialnia29.9 m2
7. Hall11.2 m2
8. Łazienka8.6 m2
Rzuty
1. Garaż47.9 m2
2. Pom. gosp53.9 m2
3. Kotłownia8.0 m2
1. Pokój10.3 m2
2. Pom. gosp.4.3 m2
3. Wiatrołap4.3 m2
4. Spiżarka2.2 m2
5. Kuchnia15.1 m2
6. Pokój dzienny38.5 m2
7. Hall15.1 m2
8. Łazienka11.8 m2
9. Pom. gosp.5.1 m2
1. Sypialnia18.9 m2
2. Sypialnia16.3 m2
3. Garderoba6.8 m2
4. Garderoba7.9 m2
5. Garderoba8.7 m2
6. Sypialnia29.9 m2
7. Hall11.2 m2
8. Łazienka8.6 m2
Dbamy o swoich Klientów, jak nikt inny!
Do każdego projektu zakupionego za pośrednictwem serwisu kreoDOM.pl otrzymasz książeczkę z rabatami na zakupy w firmach Komfort, Fachowiec, Domino Łazienki, Komandor, Witek Home i innych. Książeczka na pewno okaże się przydatna podczas urządzania Twojego wymarzonego domu!
Książeczka z rabatami do takich firm jak: Komfort, Domino Łazienki, Fachowiec, Vox, Komandor, Witek Home i innych
Gwarancja
bezpiecznych zakupów
Dodatkowe pakiety projektowe