Dane techniczne
- Powierzchnia użytkowa 123.62 m²
- Powierzchnia zabudowy 114.00 m²
- Kubatura 416.25 m³
- Kąt nachylenia dachu 48.00°
- Powierzchnia dachu 182.09 m²
- Wysokość budynku 8.48 m
- Min. wymiary działki 20.30x17.42 m
- Garaż 19.50 m²
- Pracownia LK & Projekt
Technologia budowy
- Konstrukcja dachu: drewniana docieplona wełną mineralną gr. 20 cm
- Pokrycie dachu: dachówką ceramiczną
- Elewacje: wykończone tynkiem systemowym Ytong, cokoły obłożone kamieniem naturalnym ciętym
- Strop: płyty ze zbrojonego betonu komórkowego Ytong firmy Xella
- Ściany zewnętrzne: z bloczków z betonu komórkowego Ytong Energo gr.40 cm
- Ściany wewnętrzne: z bloczków z betonu komórkowego YTONG o gr. 24 cm oraz Silka firmy Xella o gr. 12 cm
- Ławy fundamentowe: żelbetowe
- Ściany fundamentowe: betonowe
- Okna i drzwi balkonowe: drewniane, okna połaciowe firmy Fakro
- Sposób ogrzewania: kocioł na gaz
- Wentylacja: grawitacyjna
- Stan na kwartał: IV 2010 zł.
- Roboty budowlane stanu zerowego: 29 851.74 zł.
- Stan surowy zadaszony: 109 689.32 zł.
- Stolarka: 26 885.19 zł.
- Roboty budowlane stanu wykończeniowego: 82 740.41 zł.
- Instalacje: 41 200.00 zł.
- Koszt budowy ogółem (bez VAT): 290 366.66 zł.
Opis
Dom jednorodzinny, parterowy, z poddaszem użytkowym i jednostanowiskowym garażem.
Rzuty
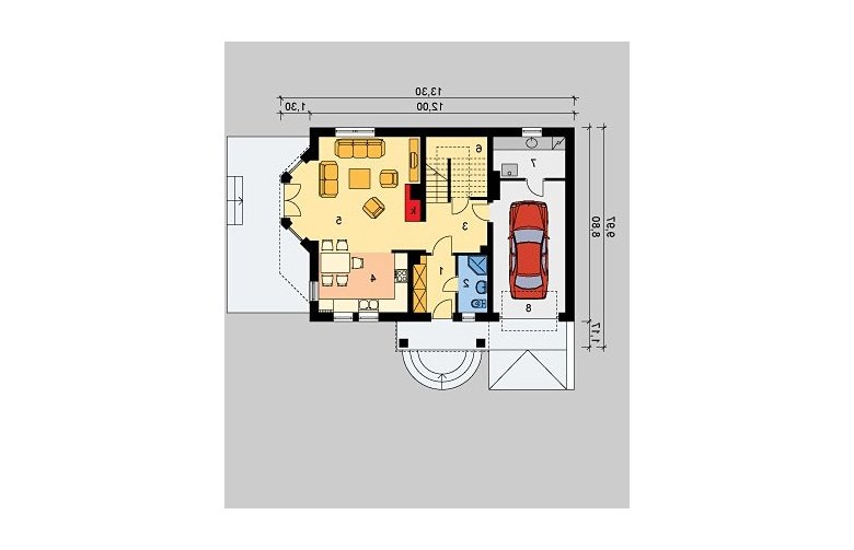
PARTER
Parter
1. Sień 4.86m
2. Łazienka 3.48m
3. Hall 6.50m
4. Kuchnia z jadalnią 10.98m
5. Pokój dzienny 27.30m
6. Schowek 3.80m
7. Pralnia z kotłownią 6.10m
8. Garaż 19.50m
PODDASZE
Poddasze
1. Hall (7.20) 7.20m
2. Łazienka (13.14) 9.60m
3. Sypialnia (22.80) 18.30m
4. Sypialnia 2 (16.70) 12.50m
5. Sypialnia 3 (18.00) 13.00m
Rzuty
PARTER
Parter
1. Sień 4.86m
2. Łazienka 3.48m
3. Hall 6.50m
4. Kuchnia z jadalnią 10.98m
5. Pokój dzienny 27.30m
6. Schowek 3.80m
7. Pralnia z kotłownią 6.10m
8. Garaż 19.50m
PODDASZE
Poddasze
1. Hall (7.20) 7.20m
2. Łazienka (13.14) 9.60m
3. Sypialnia (22.80) 18.30m
4. Sypialnia 2 (16.70) 12.50m
5. Sypialnia 3 (18.00) 13.00m
Dbamy o swoich Klientów, jak nikt inny!
Do każdego projektu zakupionego za pośrednictwem serwisu kreoDOM.pl otrzymasz książeczkę z rabatami na zakupy w firmach Komfort, Fachowiec, Domino Łazienki, Komandor, Witek Home i innych. Książeczka na pewno okaże się przydatna podczas urządzania Twojego wymarzonego domu!
Książeczka z rabatami do takich firm jak: Komfort, Domino Łazienki, Fachowiec, Vox, Komandor, Witek Home i innych
Gwarancja
bezpiecznych zakupów
Dodatkowe pakiety projektowe
- Kosztorys inwestorski cena ustalana indywidualnie
- Kolektory słoneczne cena ustalana indywidualnie
- Kominek z DGP cena ustalana indywidualnie
- Wentylacja mechaniczna z rekuperacją cena ustalana indywidualnie
- Pompa ciepła cena ustalana indywidualnie