Dane techniczne
- Powierzchnia użytkowa 111.90 m²
- Powierzchnia zabudowy 177.90 m²
- Kubatura 843.40 m³
- Kąt nachylenia dachu 30.00°
- Wysokość budynku 6.40 m
- Min. wymiary działki 26.00x24.00 m
- Garaż 40.00 m²
- Pracownia MOJ-DOM
Technologia budowy
Fundamenty: żelbetowe, wylewane
Ściany zewnętrzne: z bali drewnianych gr. 12, 16, 20, 24, 30 cm. ocieplone od wewnątrz wełną mineralną, gr. 52 cm bez ocieplenia
Strop: belkowy, drewniany, zamknięty
Pokrycie dachu: blachodachówka
Opis
Budynek jednorodzinny, parterowy, niepodpiwniczony, 3 pokoje, kuchnia, garaż
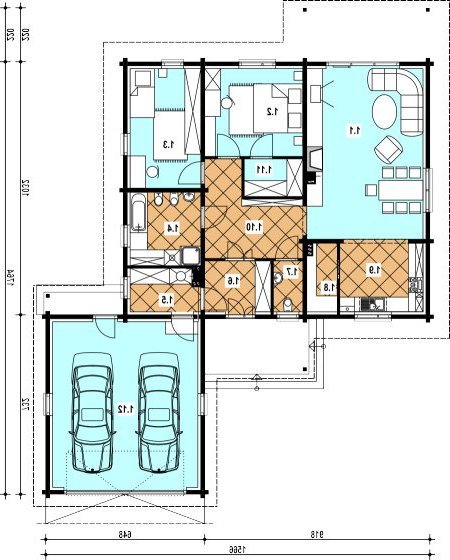
Rzuty
- pokój dzienny 33.0 m2
- sypialnia 14.3 m2
- sypialnia 14.1 m2
- łazienka 8.6 m2
- kotłownia 4.9 m2
- wiatrołap 5.6 m2
- wc 2.5 m2
- spiżarnia 3.5 m2
- kuchnia 9.5 m2
- hall 12.2 m2
- garderoba 3.7 m2
- garaż 40.0 m2
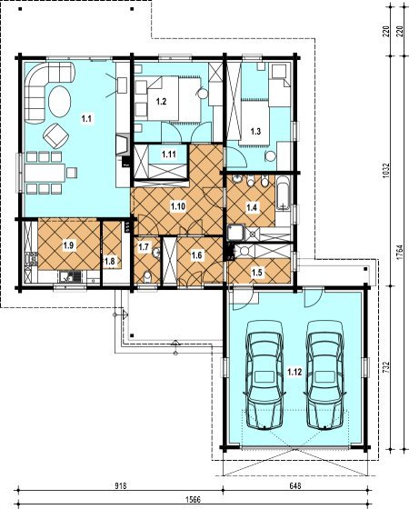
Rzuty
- pokój dzienny 33.0 m2
- sypialnia 14.3 m2
- sypialnia 14.1 m2
- łazienka 8.6 m2
- kotłownia 4.9 m2
- wiatrołap 5.6 m2
- wc 2.5 m2
- spiżarnia 3.5 m2
- kuchnia 9.5 m2
- hall 12.2 m2
- garderoba 3.7 m2
- garaż 40.0 m2
Dbamy o swoich Klientów, jak nikt inny!
Do każdego projektu zakupionego za pośrednictwem serwisu kreoDOM.pl otrzymasz książeczkę z rabatami na zakupy w firmach Komfort, Fachowiec, Domino Łazienki, Komandor, Witek Home i innych. Książeczka na pewno okaże się przydatna podczas urządzania Twojego wymarzonego domu!
Książeczka z rabatami do takich firm jak: Komfort, Domino Łazienki, Fachowiec, Vox, Komandor, Witek Home i innych
Gwarancja
bezpiecznych zakupów
Dodatkowe pakiety projektowe