Dane techniczne
- Powierzchnia użytkowa 130.40 m²
- Powierzchnia zabudowy 94.50 m²
- Kubatura 571.70 m³
- Kąt nachylenia dachu 40.00°
- Wysokość budynku 7.23 m
- Min. wymiary działki 19.50x17.50 m
- Pracownia MOJ-DOM
Technologia budowy
Ściany:
Projekt dostępny również w technologii bala drewnianego
Fundamenty: żelbetowe, wylewane
Ściany zewnetrzne: szkieletowe, ocieplane wełną mineralną
Stropy:
belkowy drewniany, otwarty
Wykończenie:
Schody: drewniane
Dach
dachówka betonowa.
Opis
Budynek jednorodzinny, parterowy, z poddaszem mieszkalnym, niepodpiwniczony, 4 pokoje, kuchnia, jadalnia
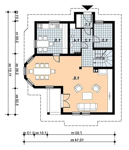
Rzuty
1. wiatrołap2.8 m2
2. hall7.5 m2
3. pom. gospodarcze6.1 m2
4. wc3.3 m2
5. kuchnia12.5 m2
6. pokój dzienny44.3 m2
1. łazienka6.1 m2
2. sypialnia21.2 m2
3. garderoba6.3 m2
4. sypialnia17.0 m2
5. sypialnia16.9 m2
6. korytarz6.6 m2
Rzuty
1. wiatrołap2.8 m2
2. hall7.5 m2
3. pom. gospodarcze6.1 m2
4. wc3.3 m2
5. kuchnia12.5 m2
6. pokój dzienny44.3 m2
1. łazienka6.1 m2
2. sypialnia21.2 m2
3. garderoba6.3 m2
4. sypialnia17.0 m2
5. sypialnia16.9 m2
6. korytarz6.6 m2
Dbamy o swoich Klientów, jak nikt inny!
Do każdego projektu zakupionego za pośrednictwem serwisu kreoDOM.pl otrzymasz książeczkę z rabatami na zakupy w firmach Komfort, Fachowiec, Domino Łazienki, Komandor, Witek Home i innych. Książeczka na pewno okaże się przydatna podczas urządzania Twojego wymarzonego domu!
Książeczka z rabatami do takich firm jak: Komfort, Domino Łazienki, Fachowiec, Vox, Komandor, Witek Home i innych
Gwarancja
bezpiecznych zakupów
Dodatkowe pakiety projektowe