Dane techniczne
- Powierzchnia użytkowa 139.20 m²
- Powierzchnia zabudowy 96.00 m²
- Kubatura 572.30 m³
- Kąt nachylenia dachu 40.00°
- Wysokość budynku 6.99 m
- Min. wymiary działki 20.00x17.00 m
- Pracownia MOJ-DOM
Technologia budowy
Fundamenty:
żelbetowe, wylewane
Ściany zewnętrzne:
szkieletowe ocieplone od wewnątrz wełną mineralną
Strop:
belkowy, drewniany, otwarty
Schody:
drewniane
Pokrycie dachu:
dachówka cementowa
Opis
Budynek jednorodzinny, parterowy, z poddaszem mieszkalnym, niepodpiwniczony, 5 pokoi, kuchnia z jadalnią
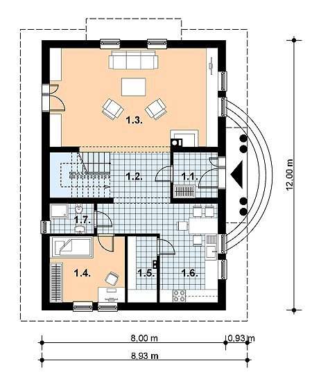
Rzuty
1. wiatrołap4.3 m2
2. hall13.4 m2
3. pokój dzienny35.3 m2
4. sypialnia10.4 m2
5. pom. gospodarcze4.1 m2
6. kuchnia z jadalnią12.3 m2
7. łazienka3.0 m2
1. hall8.8 m2
2. łazienka9.3 m2
3. sypialnia17.7 m2
4. sypialnia16.7 m2
5. sypialnia12.5 m2
6. garderoba7.2 m2
7. garderoba3.5 m2
8. pom.gosp.3.1 m2
Rzuty
1. wiatrołap4.3 m2
2. hall13.4 m2
3. pokój dzienny35.3 m2
4. sypialnia10.4 m2
5. pom. gospodarcze4.1 m2
6. kuchnia z jadalnią12.3 m2
7. łazienka3.0 m2
1. hall8.8 m2
2. łazienka9.3 m2
3. sypialnia17.7 m2
4. sypialnia16.7 m2
5. sypialnia12.5 m2
6. garderoba7.2 m2
7. garderoba3.5 m2
8. pom.gosp.3.1 m2
Dbamy o swoich Klientów, jak nikt inny!
Do każdego projektu zakupionego za pośrednictwem serwisu kreoDOM.pl otrzymasz książeczkę z rabatami na zakupy w firmach Komfort, Fachowiec, Domino Łazienki, Komandor, Witek Home i innych. Książeczka na pewno okaże się przydatna podczas urządzania Twojego wymarzonego domu!
Książeczka z rabatami do takich firm jak: Komfort, Domino Łazienki, Fachowiec, Vox, Komandor, Witek Home i innych
Gwarancja
bezpiecznych zakupów
Dodatkowe pakiety projektowe