Dane techniczne
- Powierzchnia użytkowa 85.60 m²
- Powierzchnia zabudowy 60.80 m²
- Kubatura 362.10 m³
- Kąt nachylenia dachu 45.00°
- Wysokość budynku 6.78 m
- Min. wymiary działki 17.50x16.00 m
- Pracownia MOJ-DOM
Technologia budowy
Fundamenty:
żelbetowe, wylewane
Ściany zewnetrzne:
szkieletowe, ocieplone wełną mineralną
Strop:
drewniany, belkowy, otwarty
Schody:
drewniane
Pokrycie dachu:
dachówka betonowa.
Opis
Budynek jednorodzinny, parterowy, z poddaszem mieszkalnym, niepodpiwniczony, 4 pokoje, kuchnia, jadalnia
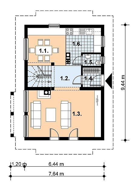
Rzuty
1. jadalnia9.5 m2
2. komunikacja7.2 m2
3. pokój dzienny24.2 m2
4. wiatrołap2.6 m2
5. wc1.6 m2
6. kuchnia6.3 m2
1. sypialnia10.4 m2
2. sypialnia12.0 m2
3. sypialnia12.2 m2
4. pom. gospodarcze2.6 m2
5. łazienka5.9 m2
6. komunikacja6.6 m2
Rzuty
1. jadalnia9.5 m2
2. komunikacja7.2 m2
3. pokój dzienny24.2 m2
4. wiatrołap2.6 m2
5. wc1.6 m2
6. kuchnia6.3 m2
1. sypialnia10.4 m2
2. sypialnia12.0 m2
3. sypialnia12.2 m2
4. pom. gospodarcze2.6 m2
5. łazienka5.9 m2
6. komunikacja6.6 m2
Dbamy o swoich Klientów, jak nikt inny!
Do każdego projektu zakupionego za pośrednictwem serwisu kreoDOM.pl otrzymasz książeczkę z rabatami na zakupy w firmach Komfort, Fachowiec, Domino Łazienki, Komandor, Witek Home i innych. Książeczka na pewno okaże się przydatna podczas urządzania Twojego wymarzonego domu!
Książeczka z rabatami do takich firm jak: Komfort, Domino Łazienki, Fachowiec, Vox, Komandor, Witek Home i innych
Gwarancja
bezpiecznych zakupów
Dodatkowe pakiety projektowe