Dane techniczne
- Powierzchnia użytkowa 65.40 m²
- Powierzchnia zabudowy 67.50 m²
- Kubatura 411.30 m³
- Kąt nachylenia dachu 45.00°
- Wysokość budynku 7.16 m
- Min. wymiary działki 19.00x18.00 m
- Garaż 16.90 m²
- Pracownia MOJ-DOM
Technologia budowy
Ściany:
Projekt dostępny również w technologii szkieletu drewnianego.
Fundamenty: żelbetowe, wylewane
Ściany zewnętrzne: z bali drewnianych gr. 12, 16, 20, 24 cm. ocieplone od wewnątrz wełną mineralną lub 52 cm bez ocieplenia
Stropy:
Belkowy, drewniany, otwarty
Wykończenie:
Schody: drewniane
Dach
Pokrycie dachu: gont bitumiczny lub blachodachówka
Opis
Budynek jednorodzinny, parterowy, z poddaszem mieszkalnym, niepodpiwniczony, 4 pokoje, kuchnia, garaż
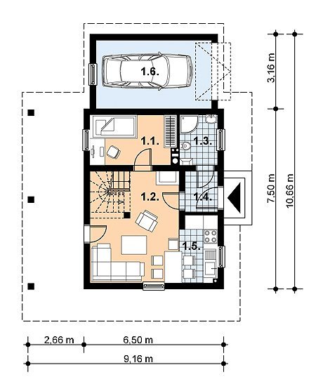
Rzuty
1. sypialnia8.1 m2
2. pokój dzienny17.9 m2
3. łazienka3.6 m2
4. wiatrołap2.8 m2
5. kuchnia4.3 m2
6. garaż16.9 m2
1. sypialnia12.3 m2
2. komunikacja4.5 m2
3. sypialnia16.5 m2
4. pom. gospodarcze4.3 m2
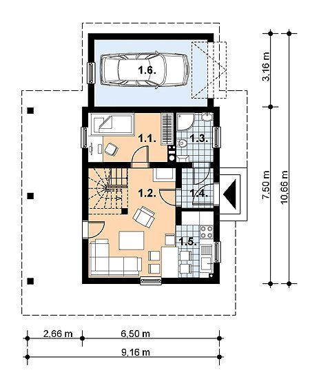
Rzuty
1. sypialnia8.1 m2
2. pokój dzienny17.9 m2
3. łazienka3.6 m2
4. wiatrołap2.8 m2
5. kuchnia4.3 m2
6. garaż16.9 m2
1. sypialnia12.3 m2
2. komunikacja4.5 m2
3. sypialnia16.5 m2
4. pom. gospodarcze4.3 m2
Dbamy o swoich Klientów, jak nikt inny!
Do każdego projektu zakupionego za pośrednictwem serwisu kreoDOM.pl otrzymasz książeczkę z rabatami na zakupy w firmach Komfort, Fachowiec, Domino Łazienki, Komandor, Witek Home i innych. Książeczka na pewno okaże się przydatna podczas urządzania Twojego wymarzonego domu!
Książeczka z rabatami do takich firm jak: Komfort, Domino Łazienki, Fachowiec, Vox, Komandor, Witek Home i innych
Gwarancja
bezpiecznych zakupów
Dodatkowe pakiety projektowe