Dane techniczne
- Powierzchnia użytkowa 130.40 m²
- Powierzchnia zabudowy 102.10 m²
- Kubatura 674.70 m³
- Kąt nachylenia dachu 40.00°
- Wysokość budynku 7.47 m
- Min. wymiary działki 21.00x20.50 m
- Garaż 17.30 m²
- Pracownia MOJ-DOM
Technologia budowy
Ściany:
Projekt dostępny również w technologii szkieletu drewnianego.
Fundamenty: żelbetowe, wylewane
Ściany zewnętrzne: z bali drewnianych gr. 12, 16, 20, 24 cm. ocieplone od wewnątrz wełną mineralną lub 52 cm bez ocieplenia
Stropy:
Belkowy, drewniany, otwarty
Wykończenie:
Schody: drewniane
Dach
Pokrycie dachu: blachodachówka
Opis
Budynek jednorodzinny, parterowy, z poddaszem mieszkalnym, niepodpiwniczony, 4 pokoje, kuchnia, garaż, kotłownia
Rzuty
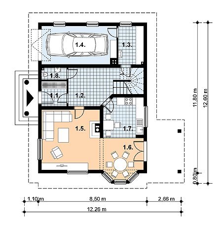
1. wiatrołap3.8 m2
2. hall13.6 m2
3. kotłownia6.3 m2
4. garaż17.3 m2
5. pokój dzienny21.8 m2
6. jadalnia9.6 m2
7. kuchnia9.7 m2
8. WC1.9 m2
1. hall9.8 m2
2. łazienka9.6 m2
3. sypialnia22.0 m2
4. sypialnia22.0 m2
5. sypialnia13.8 m2
6. garderoba4.9 m2
Rzuty
1. wiatrołap3.8 m2
2. hall13.6 m2
3. kotłownia6.3 m2
4. garaż17.3 m2
5. pokój dzienny21.8 m2
6. jadalnia9.6 m2
7. kuchnia9.7 m2
8. WC1.9 m2
1. hall9.8 m2
2. łazienka9.6 m2
3. sypialnia22.0 m2
4. sypialnia22.0 m2
5. sypialnia13.8 m2
6. garderoba4.9 m2
Dbamy o swoich Klientów, jak nikt inny!
Do każdego projektu zakupionego za pośrednictwem serwisu kreoDOM.pl otrzymasz książeczkę z rabatami na zakupy w firmach Komfort, Fachowiec, Domino Łazienki, Komandor, Witek Home i innych. Książeczka na pewno okaże się przydatna podczas urządzania Twojego wymarzonego domu!
Książeczka z rabatami do takich firm jak: Komfort, Domino Łazienki, Fachowiec, Vox, Komandor, Witek Home i innych
Gwarancja
bezpiecznych zakupów
Dodatkowe pakiety projektowe