Dane techniczne
- Powierzchnia użytkowa 59.70 m²
- Powierzchnia zabudowy 42.00 m²
- Kubatura 289.40 m³
- Kąt nachylenia dachu 45.00°
- Wysokość budynku 6.94 m
- Min. wymiary działki 16.50x14.00 m
- Pracownia MOJ-DOM
Technologia budowy
Fundamenty:
żelbetowe, wylewane
Ściany zewnętrzne:
szkieletowe, ocieplone wełną mineralną
Strop:
belkowy, drewniany, otwarty
Schody:
drewniane
Pokrycie dachu:
gont bitumiczny
Opis
Budynek jednorodzinny, parterowy, z poddaszem mieszkalnym, niepodpiwniczony, 3 pokoje, kuchnia
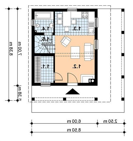
Rzuty
1. pom. gospodarcze4.7 m2
2. łazienka16.7 m2
3. kuchnia8.2 m2
4. łazienka3.8 m2
5. klatka schodowa3.4 m2
1. hall1.8 m2
2. sypialnia17.1 m2
3. sypialnia14.5 m2
Rzuty
1. pom. gospodarcze4.7 m2
2. łazienka16.7 m2
3. kuchnia8.2 m2
4. łazienka3.8 m2
5. klatka schodowa3.4 m2
1. hall1.8 m2
2. sypialnia17.1 m2
3. sypialnia14.5 m2
Dbamy o swoich Klientów, jak nikt inny!
Do każdego projektu zakupionego za pośrednictwem serwisu kreoDOM.pl otrzymasz książeczkę z rabatami na zakupy w firmach Komfort, Fachowiec, Domino Łazienki, Komandor, Witek Home i innych. Książeczka na pewno okaże się przydatna podczas urządzania Twojego wymarzonego domu!
Książeczka z rabatami do takich firm jak: Komfort, Domino Łazienki, Fachowiec, Vox, Komandor, Witek Home i innych
Gwarancja
bezpiecznych zakupów
Dodatkowe pakiety projektowe