Dane techniczne
- Powierzchnia użytkowa 117.37 m²
- Powierzchnia zabudowy 116.22 m²
- Kubatura 400.80 m³
- Kąt nachylenia dachu 38.00°
- Powierzchnia dachu 184.20 m²
- Wysokość budynku 7.49 m
- Min. wymiary działki 16.10x20.35 m
- Garaż 21.68 m²
- Pracownia Studio Z500
Technologia budowy
| Ściany |
Szkielet drewniany, |
| Strop |
Drewniany |
| Dach |
Dachówka, blachodachówka |
Opis
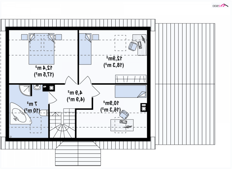
Podwariant Z14 D L GL został zaprojektowany w technologii szkieletowej w odbiciu lustrzanym oraz garażem bocznym jedno-stanowiskowym (21,3m2). W projekcie podniesiono ściankę kolankową do 95 cm czyniąc poddasze bardziej funkcjonalnym.
Dbamy o swoich Klientów, jak nikt inny!
Do każdego projektu zakupionego za pośrednictwem serwisu kreoDOM.pl otrzymasz książeczkę z rabatami na zakupy w firmach Komfort, Fachowiec, Domino Łazienki, Komandor, Witek Home i innych. Książeczka na pewno okaże się przydatna podczas urządzania Twojego wymarzonego domu!
Książeczka z rabatami do takich firm jak: Komfort, Domino Łazienki, Fachowiec, Vox, Komandor, Witek Home i innych
Gwarancja
bezpiecznych zakupów
Dodatkowe pakiety projektowe
- Kosztorys inwestorski 249,00zł
- Zestawienie materiałów 57,00 zł
- Wentylacja mechaniczna z rekuperacja 550,00 zł
- Pompa ciepła 250,00 zł
- Kotłownia na paliwo stałe zapytaj o dostępność
- Ogrzewanie podłogowe 350,00 zł
- Kolektory słoneczne 250,00 zł
- Przydomowa oczyszczalnia ścieków 350,00 zł
- Wersja elektroniczna projektu 197,00 zł
- Dodatkowy egzemplarz projektu 249,00 zł