Technologia tradycyjna, ściany zewnętrzne murowane grubości 30 cm + 10 cm styropian, ściany wewnętrzne (nośne) gr. 25 cm i działowe gr. 12 cm. Wszystkie ściany wykonane z pustaków ceramicznych "POROTHERM". Strop gęstożebrowy "POROTHERM" o gr. 23 cm.. Konstrukcja więźby dachowej drewniana, pokrycie dachówka ceramiczna.
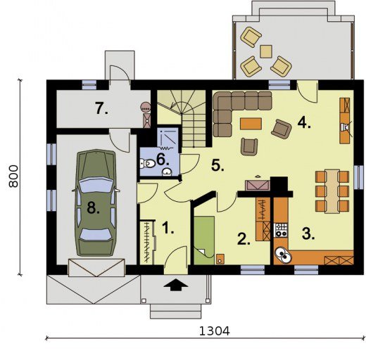
"Lamia" Projekt domku jednorodzinnego Lamia zachwyca swą prostotą i elegancją. Został zaprojektowany tak, by stanowić komfortowe rozwiązanie nawet dla pięcioosobowej rodziny. Wejście do domku zostało umieszczone pod niepozornym daszkiem, który stanowi przedłużenie dachu. Dwa okna wychodzące na południe, dodają elewacji frontowej wiele uroku. Z lewej strony przodu domu przewidziano jednostanowiskowy garaż. Na uwagę zasługuje fakt, iż w całym projekcie nacisk został położony na funkcjonalność całej konstrukcji opartej na prostej bryle. Wiatrołap, do którego wchodzimy po przekroczeniu progu domu, możemy zaopatrzyć w praktyczną garderobę. Stąd, kierując się na lewo, możemy przejść do jednostanowiskowego garażu, gdzie przewidziano miejsce na kotłownię, posiadającą odrębne wyjście na podwórze. Z wiatrołapu można także przejść do komunikacji spajającej pozostałe pomieszczenia parteru. Od razu po lewej stronie, tuż obok klatki schodowej przewidziano miejsce na niewielką łazienkę. Do ściany południowej domu przylega niewielki pokoik, który możemy urządzić zgodnie z potrzebami domowników (np. jako pokój telewizyjny, gabinet, czy sypialnię). Pozostałe trzy pomieszczenia parteru, mimo swej odrębności, stanowią wspaniały zespół, w którym znalazło się miejsce na kuchnię z aneksem jadalnym oraz na obszerny pokój dzienny. Możemy stąd udać się na przestronny, cichy taras, umieszczony z tyłu domu. Poddasze domu natomiast zajmuje ogromna łazienka z miejscem na wannę oraz cztery pokoje. Pierwszy z nich, sąsiadujący z łazienką, jest oświetlany przez dwa okna – tradycyjne i połaciowe. Drugi – niewielki – posiada tylko okno połaciowe. Pozostałe dwa pokoje, oprócz okien połaciowych, mają także wyjście na balkon umieszczony od strony wschodniej domu. Sypialnia, przylegająca do ścian północnej i wschodniej, została dodatkowo wyposażona w garderobę. W projekcie Lamia wykorzystano zatem wiele ciekawych rozwiązań. Jest komfortowym, jednorodzinnym domem. Czyż ten projekt nie jest wart uwagi?