Dane techniczne
- Powierzchnia użytkowa 339.71 m²
- Powierzchnia zabudowy 343.65 m²
- Kubatura 1308.87 m³
- Kąt nachylenia dachu 1.50°
- Powierzchnia dachu 239.53 m²
- Wysokość budynku 10.00 m
- Min. wymiary działki 26.50x37.00 m
- Garaż 74.82 m²
- Pracownia LK & Projekt
Technologia budowy
- Elewacje: wykończone tynkiem silikonowym, okładzina kamienna - trawertyn, panele kompozytowe Alucobond
- Ściany wewnętrzne: z pustaków ceramicznych 'Porotherm' gr. 25, 11.5 cm firmy Wienerberger
- Okna i drzwi balkonowe: aluminiowe
- Sposób ogrzewania: kocioł na gaz, wspomaganie cwu kolektorami słonecznymi, ogrzewanie podłogowe
- Strop: żelbetowy
- Konstrukcja dachu: stropodach pełny, ocieplony styropianem 'Gold podłoga' o gr. 20 cm
- Pokrycie dachu: płytami kamiennymi
- Ściany zewnętrzne: z pustaków ceramicznych 'Porotherm' o gr.30 cm firmy Wienerberger,ocieplone styropianem 'Gold fasada' o gr.20 cm firmy Termo Organika
- Ławy fundamentowe: żelbetowe
- Ściany fundamentowe: betonowe, wylewane o gr.25 i 30 cm, ocieplone styropianem 'Gold fundament' firmy Termo Organika o gr.20 cm
- Wentylacja: mechaniczna z rekuperacją
- Koszt orientacyjny (bez Vat): 1 458 727.00 zł.
Opis
Nowoczesny, piętrowy dom jednorodzinny.
Rzuty
PIWNICA
- Hall 13,92 m2
- Pokój rekreacyjny 34,80 m2
- Pomieszczenie techniczne 8,19 m2
- Fitness 17,43 m2
- Prysznic 3,43 m2
- WC 3,00 m
- Pokój wielofunkcyjny 70,85 m2
- Pralnia z kotłownią 19,96 m2
- Schowek 1,37 m2
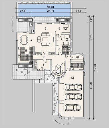
PARTER
- Sień 10,19 m2
- Hall 24,31 m2
- Kuchnia 18,01 m2
- Jadalnia 15,18 m2
- Pokój dzienny 42,65 m2
- Biblioteka 10,92 m2
- Gabinet 11,17 m2
- Komunikacja 3,65 m2
- WC 4,21 m2
- Pomieszczenie gospodarcze 5,41 m2
- Spiżarka 7,83 m2
- Garaż 74,82 m2
PIĘTRO
- Hall 31,80 m2
- Sypialnia 14,11 m2
- Pokój 18,88 m2
- Garderoba 3,15 m2
- Łazienka 12,87 m2
- Sypialnia 2 20,28 m2
- Biblioteka 9,80 m2
- Garderoba 2 20,76 m2
- Sypialnia 3 18,00 m2
- Łazienka 2 4,86 m2
PIĘTRO II
- Pokój wypoczynkowy 31,67 m2
Rzuty
PIWNICA
- Hall 13,92 m2
- Pokój rekreacyjny 34,80 m2
- Pomieszczenie techniczne 8,19 m2
- Fitness 17,43 m2
- Prysznic 3,43 m2
- WC 3,00 m
- Pokój wielofunkcyjny 70,85 m2
- Pralnia z kotłownią 19,96 m2
- Schowek 1,37 m2
PARTER
- Sień 10,19 m2
- Hall 24,31 m2
- Kuchnia 18,01 m2
- Jadalnia 15,18 m2
- Pokój dzienny 42,65 m2
- Biblioteka 10,92 m2
- Gabinet 11,17 m2
- Komunikacja 3,65 m2
- WC 4,21 m2
- Pomieszczenie gospodarcze 5,41 m2
- Spiżarka 7,83 m2
- Garaż 74,82 m2
PIĘTRO
- Hall 31,80 m2
- Sypialnia 14,11 m2
- Pokój 18,88 m2
- Garderoba 3,15 m2
- Łazienka 12,87 m2
- Sypialnia 2 20,28 m2
- Biblioteka 9,80 m2
- Garderoba 2 20,76 m2
- Sypialnia 3 18,00 m2
- Łazienka 2 4,86 m2
PIĘTRO II
- Pokój wypoczynkowy 31,67 m2
Dbamy o swoich Klientów, jak nikt inny!
Do każdego projektu zakupionego za pośrednictwem serwisu kreoDOM.pl otrzymasz książeczkę z rabatami na zakupy w firmach Komfort, Fachowiec, Domino Łazienki, Komandor, Witek Home i innych. Książeczka na pewno okaże się przydatna podczas urządzania Twojego wymarzonego domu!
Książeczka z rabatami do takich firm jak: Komfort, Domino Łazienki, Fachowiec, Vox, Komandor, Witek Home i innych
Gwarancja
bezpiecznych zakupów
Dodatkowe pakiety projektowe
- Kosztorys inwestorski cena ustalana indywidualnie
- Kolektory słoneczne cena ustalana indywidualnie
- Kominek z DGP cena ustalana indywidualnie
- Wentylacja mechaniczna z rekuperacją cena ustalana indywidualnie
- Pompa ciepła cena ustalana indywidualnie