Dane techniczne
- Powierzchnia użytkowa 213.36 m²
- Powierzchnia zabudowy 276.95 m²
- Kubatura 775.79 m³
- Kąt nachylenia dachu 45.00°
- Powierzchnia dachu 232.12 m²
- Wysokość budynku 9.90 m
- Min. wymiary działki 21.50x29.40 m
- Garaż 54.60 m²
- Pracownia LK & Projekt
Technologia budowy
- Ściany wewnętrzne: z pustaków ceramicznych Heluz Family gr. 30 cm, 25 cm, 11,5 cm
- Wentylacja: mechaniczna z rekuperacją
- Okna i drzwi balkonowe: aluminiowe
- Sposób ogrzewania: pompa ciepła, ogrzewanie podłogowe
- Elewacje: wykończone tynkiem silikonowy, okładziną z łupka, okładziną z drewna impregnowanego
- Strop: żelbetowy
- Konstrukcja dachu: drewniana, ocieplona wełną mineralną o gr.30 cm firmy Rockwool
- Pokrycie dachu: dachówką ceramiczną 'Koramic' firmy 'Wienerberger', Actua 10
- Ławy fundamentowe: betonowe
- Ściany fundamentowe: z bloczków betonowych o gr.30 i 25 cm, ocieplone styropianem 'Gold fundament' firmy Termo Organika o gr. 14 cm
- Ściany zewnętrzne: z pustaków ceramicznych Heluz Family 2 in 1 o grub. 50 cm wypełnionych izolacją polistyrenową
- Koszt orientacyjny (bez Vat): 674 352.00 zł.
Opis
Projekt LK&1083 to dom tradycyjny w nowoczesnej formie, jest to budynek parterowy z poddaszem użytkowym oraz garażem 2-stanowiskowym. Elementami wyróżniającymi projekt są: elewacje wykonane w bardzo nowoczesnej i minimalistycznej stylistyce oraz dwa duże tarasy - mniejszy na parterze, zadaszony, prowadzący wprost do ogrodu i drugi większy, znajdujący się na dachu garażu.
Rzuty
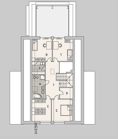
PARTER
- Powierzchnia użytkowa 123,56 m2
- Sień 5,63 m2
- Korytarz 7,12 m2
- Gabinet 15,09 m2
- WC 2,07 m2
- Przedsionek 2,09 m2
- Łazienka/Sauna 18,18 m2
- Przedsionek 2 1,87 m2
- WC 2 2,18 m2
- Hall 8,42 m2
- Pokój dzienny 39,44 m2
- Kuchnia 10,38 m2
- Spiżarka 4,88 m2
- Pom.pompy ciepła 6,21 m2
- Garaż 54,60 m
Rzuty
PARTER
- Powierzchnia użytkowa 123,56 m2
- Sień 5,63 m2
- Korytarz 7,12 m2
- Gabinet 15,09 m2
- WC 2,07 m2
- Przedsionek 2,09 m2
- Łazienka/Sauna 18,18 m2
- Przedsionek 2 1,87 m2
- WC 2 2,18 m2
- Hall 8,42 m2
- Pokój dzienny 39,44 m2
- Kuchnia 10,38 m2
- Spiżarka 4,88 m2
- Pom.pompy ciepła 6,21 m2
- Garaż 54,60 m
Dbamy o swoich Klientów, jak nikt inny!
Do każdego projektu zakupionego za pośrednictwem serwisu kreoDOM.pl otrzymasz książeczkę z rabatami na zakupy w firmach Komfort, Fachowiec, Domino Łazienki, Komandor, Witek Home i innych. Książeczka na pewno okaże się przydatna podczas urządzania Twojego wymarzonego domu!
Książeczka z rabatami do takich firm jak: Komfort, Domino Łazienki, Fachowiec, Vox, Komandor, Witek Home i innych
Gwarancja
bezpiecznych zakupów
Dodatkowe pakiety projektowe
- Kosztorys inwestorski cena ustalana indywidualnie
- Kolektory słoneczne cena ustalana indywidualnie
- Kominek z DGP cena ustalana indywidualnie
- Wentylacja mechaniczna z rekuperacją cena ustalana indywidualnie
- Pompa ciepła cena ustalana indywidualnie