Dane techniczne
- Powierzchnia użytkowa 270.66 m²
- Powierzchnia zabudowy 283.80 m²
- Kubatura 1190.93 m³
- Kąt nachylenia dachu 2.00°
- Powierzchnia dachu 242.54 m²
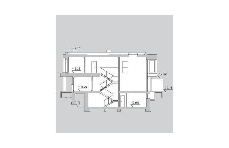
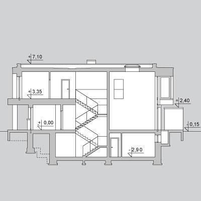
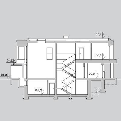
- Wysokość budynku 7.25 m
- Min. wymiary działki 32.22x24.80 m
- Garaż 49.95 m²
- Pracownia LK & Projekt
Technologia budowy
- Ściany wewnętrzne: z pustaków ceramicznych Porotherm P+W gr. 25, 11.5 cm firmy Wienerberger
- Wentylacja: mechaniczna z rekuperacją
- Okna i drzwi balkonowe: aluminiowe
- Sposób ogrzewania: pompa ciepła, wspomaganie cwu kolektorami słonecznymi, ogrzewanie podłogowe
- Elewacje: wykończone tynkiem silikonowym, cegłą klinkierową Terca Dresden firmy Wienerberger, Yawalbond
- Konstrukcja dachu: stropodach płaski
- Pokrycie dachu: papą bitumiczną
- Strop: żelbetowy
- Ławy fundamentowe: żelbetowe
- Ściany fundamentowe: z pustaków szalunkowych o gr.30 cm, ocieplone styropianem Gold fundament o gr.20 cm firmy Termo Organika
- Ściany zewnętrzne: z pustaków ceramicznych Porotherm P+W o gr.30 cm, ocieplone styropianem Gold fasada o gr.20 cm firmy Termo Organika
- Koszt orientacyjny (bez Vat): 1 500 000.00 zł.
Opis
Projekt nowoczesnego budynku piętrowego
Rzuty
- Hall 11.85 m2
- Pomieszczenie gospodarcze 15.55 m2
- Sauna 9.23 m2
- Łazienka 4.36 m2
- Pokój rekreacyjny 26.44 m2
- Fitness 21.53 m2
- Jacuzzi 10.37 m2
- Przebieralnia 2.92 m2
- Sień 9,58 m2
- Hall 13,10 m2
- Kuchnia 23,17 m2
- Jadalnia 14,45 m2
- Pokój dzienny 38,84 m2
- Sypialnia 19,57 m2
- Łazienka 13,21 m2
- Garderoba 8,43 m2
- WC 5,12 m2
- Kotłownia 7,44 m2
- Pomieszczenie gospodarcze 15,55 m2
- Garaż 49,95 m2
- Hall 26,63 m2
- Sypialnia 19,76 m2
- Łazienka 10,09 m2
- Sypialnia 2 17,79 m2
- Łazienka 2 11,81 m2
- Sypialnia 3 23,37 m2
- Pralnia 15,74 m2
Rzuty
- Hall 11.85 m2
- Pomieszczenie gospodarcze 15.55 m2
- Sauna 9.23 m2
- Łazienka 4.36 m2
- Pokój rekreacyjny 26.44 m2
- Fitness 21.53 m2
- Jacuzzi 10.37 m2
- Przebieralnia 2.92 m2
- Sień 9,58 m2
- Hall 13,10 m2
- Kuchnia 23,17 m2
- Jadalnia 14,45 m2
- Pokój dzienny 38,84 m2
- Sypialnia 19,57 m2
- Łazienka 13,21 m2
- Garderoba 8,43 m2
- WC 5,12 m2
- Kotłownia 7,44 m2
- Pomieszczenie gospodarcze 15,55 m2
- Garaż 49,95 m2
- Hall 26,63 m2
- Sypialnia 19,76 m2
- Łazienka 10,09 m2
- Sypialnia 2 17,79 m2
- Łazienka 2 11,81 m2
- Sypialnia 3 23,37 m2
- Pralnia 15,74 m2
Dbamy o swoich Klientów, jak nikt inny!
Do każdego projektu zakupionego za pośrednictwem serwisu kreoDOM.pl otrzymasz książeczkę z rabatami na zakupy w firmach Komfort, Fachowiec, Domino Łazienki, Komandor, Witek Home i innych. Książeczka na pewno okaże się przydatna podczas urządzania Twojego wymarzonego domu!
Książeczka z rabatami do takich firm jak: Komfort, Domino Łazienki, Fachowiec, Vox, Komandor, Witek Home i innych
Gwarancja
bezpiecznych zakupów
Dodatkowe pakiety projektowe
- Kosztorys inwestorski cena ustalana indywidualnie
- Kolektory słoneczne cena ustalana indywidualnie
- Kominek z DGP cena ustalana indywidualnie
- Wentylacja mechaniczna z rekuperacją cena ustalana indywidualnie
- Pompa ciepła cena ustalana indywidualnie