Dane techniczne
- Powierzchnia użytkowa 263.83 m²
- Powierzchnia zabudowy 236.19 m²
- Kubatura 926.86 m³
- Kąt nachylenia dachu 30.00°
- Powierzchnia dachu 158.94 m²
- Wysokość budynku 9.71 m
- Min. wymiary działki 26.37x25.15 m
- Garaż 35.83 m²
- Pracownia LK & Projekt
Technologia budowy
- Wentylacja: mechaniczna z rekuperacją
- Sposób ogrzewania: kocioł na gaz, ogrzewanie podłogowe
- Okna i drzwi balkonowe: drewniane
- Strop: żelbetowy
- Konstrukcja dachu: drewniana, ocieplona wełną mineralną gr. 30 cm firmy Rockwool
- Pokrycie dachu: dachówką ceramiczną firmy Wienerberger, Actua
- Ściany zewnętrzne: z pustaków ceramicznych Porotherm 50 P+W
- Ściany wewnętrzne: z pustaków ceramicznych Porotherm 25 i 11,5 P+W
- Elewacje: wykończone tynkiem silikonowym, cegłą ręcznie formowaną, okładzina kamienna i drewniana
- Ławy fundamentowe: żelbetowe
- Ściany fundamentowe: z bloczków betonowych o gr.24,30 i 38 cm, częściowo żelbetowe o gr. 18 i 30 cm
- Koszt orientacyjny (bez Vat): 845 235.00 zł.
Opis
Nowoczesny, piętrowy dom jednorodzinny.
Rzuty
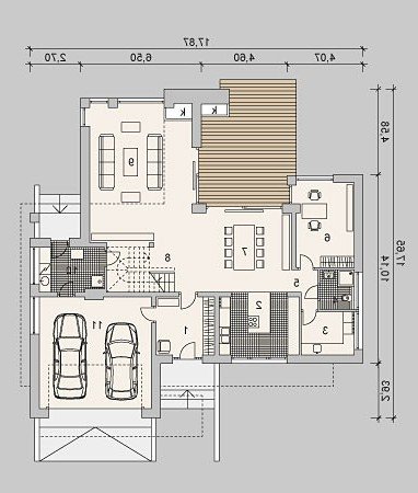
PARTER
Parter
1. Sień 9.83m
2. Kuchnia 14.17m
3. Spiżarka 6.62m
4. Łazienka 3.93m
5. Korytarz 2.54m
6. Gabinet 14.21m
7. Jadalnia 22.74m
8. Komunikacja 8.09m
9. Pokój dzienny 38.84m
10. Pralnia z kotłownią 8.23m
11. Garaż 35.83m
PIĘTRO
Piętro
1. Hall 32.70m
2. Sypialnia 26.99m
3. Garderoba 10.75m
4. Łazienka 16.06m
5. Łazienka 2 7.56m
6. Pralnia 6.73m
7. Sypialnia 2 17.02m
8. Sypialnia 3 16.82m
Rzuty
PARTER
Parter
1. Sień 9.83m
2. Kuchnia 14.17m
3. Spiżarka 6.62m
4. Łazienka 3.93m
5. Korytarz 2.54m
6. Gabinet 14.21m
7. Jadalnia 22.74m
8. Komunikacja 8.09m
9. Pokój dzienny 38.84m
10. Pralnia z kotłownią 8.23m
11. Garaż 35.83m
PIĘTRO
Piętro
1. Hall 32.70m
2. Sypialnia 26.99m
3. Garderoba 10.75m
4. Łazienka 16.06m
5. Łazienka 2 7.56m
6. Pralnia 6.73m
7. Sypialnia 2 17.02m
8. Sypialnia 3 16.82m
Dbamy o swoich Klientów, jak nikt inny!
Do każdego projektu zakupionego za pośrednictwem serwisu kreoDOM.pl otrzymasz książeczkę z rabatami na zakupy w firmach Komfort, Fachowiec, Domino Łazienki, Komandor, Witek Home i innych. Książeczka na pewno okaże się przydatna podczas urządzania Twojego wymarzonego domu!
Książeczka z rabatami do takich firm jak: Komfort, Domino Łazienki, Fachowiec, Vox, Komandor, Witek Home i innych
Gwarancja
bezpiecznych zakupów
Dodatkowe pakiety projektowe
- Kosztorys inwestorski cena ustalana indywidualnie
- Kolektory słoneczne cena ustalana indywidualnie
- Kominek z DGP cena ustalana indywidualnie
- Wentylacja mechaniczna z rekuperacją cena ustalana indywidualnie
- Pompa ciepła cena ustalana indywidualnie