Dane techniczne
- Powierzchnia użytkowa 291.32 m²
- Powierzchnia zabudowy 301.10 m²
- Kubatura 1332.00 m³
- Kąt nachylenia dachu 43.00°
- Powierzchnia dachu 510.00 m²
- Wysokość budynku 9.00 m
- Min. wymiary działki 31.10x32.10 m
- Garaż 56.40 m²
- Pracownia LK & Projekt
Technologia budowy
- Wentylacja: mechaniczna z rekuperacją
- Konstrukcja dachu: drewniana, krokwiowo -kleszczowa ,ocieplona wełną mineralną o gr. 30 cm firmy Rockwool
- Pokrycie dachu: dachówką ceramiczną płaską
- Elewacje: wykończone tynkiem silikonowym, drewno na aluminiowej podkonstrukcji
- Okna i drzwi balkonowe: ślusarka aluminiowa firmy Yawal
- Sposób ogrzewania: kocioł na gaz, ogrzewanie podłogowe
- Ściany wewnętrzne: z pustaków ceramicznych Porotherm Dryfix gr. 25, 11.5 cm firmy Wienerberger
- Strop: żelbetowy
- Ściany zewnętrzne: z pustaków ceramicznych Porotherm 44 T Dryfix firmy Wienerberger, ocieplone styropianem Gold fasada o gr. 6 cm firmy Termo Organika
- Ławy fundamentowe: żelbetowe
- Ściany fundamentowe: betonowe o gr.35 i 25 cm, ocieplone styropianem ekstrudowanym o gr.15 cm firmy Termo Organika
Opis
Projekt nowoczesnego domu z przestronnym garażem posiadającym trzy miejsca parkingowe. Idealny dla rodziny 4-6 osobowej. Posiada miejsce przeznaczone na biblioteczke, pracownie i garderobę.
Rzuty
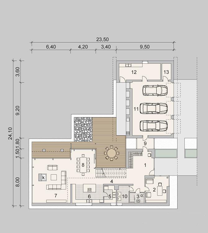
PARTER
- Sień 14,65 m2
- Gabinet 14,35 m2
- Łazienka 4,10 m2
- Korytarz 16,24 m2
- Spiżarka 5,90 m2
- Kuchnia 16,61 m2
- Pokój dzienny 45,30 m2
- Jadalnia 21,80 m2
- Korytarz 2 5,33 m2
- Kotłownia 5,55 m2
- Garaż 56,40 m2
- Pomieszczenie gospodarcze 17,70 m2
- Śmietnik 3,74 m2
PIĘTRO
- Korytarz 33,52 m2
- Biblioteka 19,27 (14,53)
- Pralnia 9,97 (6,56)
- Garderoba 15,50 (10,06)
- Sypialnia 21,41 (17,25)
- Łazienka 10,05 (8,95)
- Łazienka 2 11,88 (8,40)
- Garderoba 2 5,92 (4,18)
- Sypialnia 2 19,26 (14,21)
- Sypialnia 3 19,21 (14,17)
- Pracownia 18,21 (12,88)
- Pomieszczenie techniczne 3,94 (2,48)
Rzuty
PARTER
- Sień 14,65 m2
- Gabinet 14,35 m2
- Łazienka 4,10 m2
- Korytarz 16,24 m2
- Spiżarka 5,90 m2
- Kuchnia 16,61 m2
- Pokój dzienny 45,30 m2
- Jadalnia 21,80 m2
- Korytarz 2 5,33 m2
- Kotłownia 5,55 m2
- Garaż 56,40 m2
- Pomieszczenie gospodarcze 17,70 m2
- Śmietnik 3,74 m2
PIĘTRO
- Korytarz 33,52 m2
- Biblioteka 19,27 (14,53)
- Pralnia 9,97 (6,56)
- Garderoba 15,50 (10,06)
- Sypialnia 21,41 (17,25)
- Łazienka 10,05 (8,95)
- Łazienka 2 11,88 (8,40)
- Garderoba 2 5,92 (4,18)
- Sypialnia 2 19,26 (14,21)
- Sypialnia 3 19,21 (14,17)
- Pracownia 18,21 (12,88)
- Pomieszczenie techniczne 3,94 (2,48)
Dbamy o swoich Klientów, jak nikt inny!
Do każdego projektu zakupionego za pośrednictwem serwisu kreoDOM.pl otrzymasz książeczkę z rabatami na zakupy w firmach Komfort, Fachowiec, Domino Łazienki, Komandor, Witek Home i innych. Książeczka na pewno okaże się przydatna podczas urządzania Twojego wymarzonego domu!
Książeczka z rabatami do takich firm jak: Komfort, Domino Łazienki, Fachowiec, Vox, Komandor, Witek Home i innych
Gwarancja
bezpiecznych zakupów
Dodatkowe pakiety projektowe
- Kosztorys inwestorski cena ustalana indywidualnie
- Kolektory słoneczne cena ustalana indywidualnie
- Kominek z DGP cena ustalana indywidualnie
- Wentylacja mechaniczna z rekuperacją cena ustalana indywidualnie
- Pompa ciepła cena ustalana indywidualnie