Dane techniczne
- Powierzchnia użytkowa 312.61 m²
- Powierzchnia zabudowy 333.30 m²
- Kubatura 1404.54 m³
- Kąt nachylenia dachu 43.00°
- Wysokość budynku 10.25 m
- Min. wymiary działki 35.40x25.90 m
- Garaż 75.61 m²
- Pracownia LK & Projekt
Technologia budowy
Ławy fundamentowe: żelbetowe
Ściany fundamentowe: betonowe
Ściany zewnętrzne: pustak ceramiczny Porotherm o gr. 44cm firmy Wienerberger, docieplenie styropianem o gr. 6cm
Ściany wewnętrzne NOŚNE: pustaki ceramiczne Porotherm Profi firmy Wienerberger o gr. 25 cm
Strop żelbetowy, monolityczny
Konstrukcja dachu: drewniana, ocieplona wełną mineralną o gr. 40cm firmy Isover
Pokrycie dachu: dachówka ceramiczna płaska
Elewacje: tynk silikonowy kolor: biały, szary, panele hpl, kamień trawertyn
Okna i drzwi balkonowe: aluminiowe
Sposób ogrzewania: gazowe, podłogowe
Wentylacja: mechaniczna z rekuperacją
Ściany wewnętrzne nośne: pustaki ceramiczne Porotherm Profi firmy Wienerberger o gr. 25 cm
Opis
Nowoczesny, piętrowy dom jednorodzinny z wielostanowiskowym garażem. Idealny dom dla osób lubiących przestronne i funkcjonalne wnętrza w bryle o ciekawej konstrukcji.
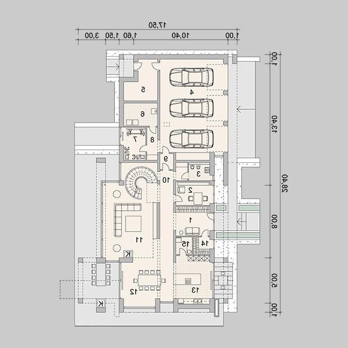
Rzuty
PARTER
- Sień 12,19 m2
- Gabinet 9,77 m2
- Łazienka 4,67 m2
- Pomieszczenie gospodarcze 13,25 m2
- Kotłownia 9,51 m2
- Fitness 8,89 m2
- Korytarz 2 4,75 m2
- Przedsionek 2,98 m2
- Korytarz 19,02 m2
- Salon 50,58 m2
- Jadalnia 26,35 m2
- Kuchnia 20,89 m2
- Garderoba 3,54 m2
- Spiżarka 3,51 m2
PIĘTRO
- Korytarz 18,70 m2
- Fitness 16,26 m2
- Pralnia 4,81 m2
- Łazienka 9,84 m2
- Garderoba 20,55 m2
- Przedsionek 9,12 m2
- Łazienka 13,81 m2
- Sypialnia 23,46 m2
Rzuty
PARTER
- Sień 12,19 m2
- Gabinet 9,77 m2
- Łazienka 4,67 m2
- Pomieszczenie gospodarcze 13,25 m2
- Kotłownia 9,51 m2
- Fitness 8,89 m2
- Korytarz 2 4,75 m2
- Przedsionek 2,98 m2
- Korytarz 19,02 m2
- Salon 50,58 m2
- Jadalnia 26,35 m2
- Kuchnia 20,89 m2
- Garderoba 3,54 m2
- Spiżarka 3,51 m2
PIĘTRO
- Korytarz 18,70 m2
- Fitness 16,26 m2
- Pralnia 4,81 m2
- Łazienka 9,84 m2
- Garderoba 20,55 m2
- Przedsionek 9,12 m2
- Łazienka 13,81 m2
- Sypialnia 23,46 m2
Dbamy o swoich Klientów, jak nikt inny!
Do każdego projektu zakupionego za pośrednictwem serwisu kreoDOM.pl otrzymasz książeczkę z rabatami na zakupy w firmach Komfort, Fachowiec, Domino Łazienki, Komandor, Witek Home i innych. Książeczka na pewno okaże się przydatna podczas urządzania Twojego wymarzonego domu!
Książeczka z rabatami do takich firm jak: Komfort, Domino Łazienki, Fachowiec, Vox, Komandor, Witek Home i innych
Gwarancja
bezpiecznych zakupów
Dodatkowe pakiety projektowe
- Kosztorys inwestorski cena ustalana indywidualnie
- Kolektory słoneczne cena ustalana indywidualnie
- Kominek z DGP cena ustalana indywidualnie
- Wentylacja mechaniczna z rekuperacją cena ustalana indywidualnie
- Pompa ciepła cena ustalana indywidualnie