Dane techniczne
- Powierzchnia użytkowa 297.63 m²
- Powierzchnia zabudowy 359.15 m²
- Kubatura 1188.73 m³
- Kąt nachylenia dachu 30.00°
- Powierzchnia dachu 365.71 m²
- Wysokość budynku 9.40 m
- Min. wymiary działki 36.30x30.40 m
- Garaż 47.95 m²
- Pracownia LK & Projekt
Technologia budowy
- Pokrycie dachu: blachą tytan-cynk
- Konstrukcja dachu: drewniana, ocieplona wełną mineralną firmy' Rockwool' gr.30 cm
- Strop: żelbetowy, monolityczny
- Ściany wewnętrzne: nośne z pustaków 'Porotherm' gr. 25 cm, a działowe gr. 11,5 cm
- Ściany zewnętrzne: z pustaków ceramicznych firmy 'Porotherm' o gr. 30 cm ocieplone 'Gold fasada' firmy Termoorganika o gr. 20cm
- Ściany fundamentowe: żelbetowe, wylewane gr.30cm
- Ławy fundamentowe: żelbetowe
- Elewacje: wykończone tynkiem silikonowym oraz kamieniem naturalnym
- Okna i drzwi balkonowe: aluminiowe firmy Yawal
- Sposób ogrzewania: gazowe; na parterze i łazience na piętrze ogrzewanie podłogowe
- Wentylacja: mechaniczna z rekuperacją
- Stan na kwartał: II 2011 zł.
- Roboty budowlane stanu zerowego: 99 925.97 zł.
- Stan surowy zadaszony: 352 667.85 zł.
- Stolarka: 181 355.97 zł.
- Roboty budowlane stanu wykończeniowego: 427 012.06 zł.
- Instalacje: 264 900.00 zł.
- Koszt budowy ogółem (bez VAT): 1 325 861.85 zł.
Opis
Dom jednorodzinny, piętrowy z dwustanowiskowym garażem.
Rzuty
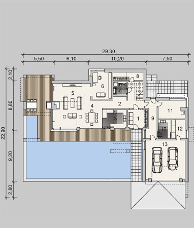
PARTER
Parter
1. Sień 10.87m
2. Hall 17.15m
3. Kuchnia 13.54m
4. Jadalnia 15.12m
5. Pokój dzienny 45.03m
6. Biblioteka 16.39m
7. Łazienka 5.64m
8. Garderoba 7.69m
9. Hall 2 11.84m
10. Spiżarka 7.62m
11. Kotłownia 15.25m
12. Pomieszczenie gospodarcze 8.07m
13. Garaż 47.95m
PIĘTRO
Piętro
1. Hall 12.03m
2. Łazienka 15.85m
3. Sypialnia 49.75m
4. Garderoba 16.39m
5. Pralnia z rekuperatorem 11.40m
6. Pracownia artystyczna 41.32m
Rzuty
PARTER
Parter
1. Sień 10.87m
2. Hall 17.15m
3. Kuchnia 13.54m
4. Jadalnia 15.12m
5. Pokój dzienny 45.03m
6. Biblioteka 16.39m
7. Łazienka 5.64m
8. Garderoba 7.69m
9. Hall 2 11.84m
10. Spiżarka 7.62m
11. Kotłownia 15.25m
12. Pomieszczenie gospodarcze 8.07m
13. Garaż 47.95m
PIĘTRO
Piętro
1. Hall 12.03m
2. Łazienka 15.85m
3. Sypialnia 49.75m
4. Garderoba 16.39m
5. Pralnia z rekuperatorem 11.40m
6. Pracownia artystyczna 41.32m
Dbamy o swoich Klientów, jak nikt inny!
Do każdego projektu zakupionego za pośrednictwem serwisu kreoDOM.pl otrzymasz książeczkę z rabatami na zakupy w firmach Komfort, Fachowiec, Domino Łazienki, Komandor, Witek Home i innych. Książeczka na pewno okaże się przydatna podczas urządzania Twojego wymarzonego domu!
Książeczka z rabatami do takich firm jak: Komfort, Domino Łazienki, Fachowiec, Vox, Komandor, Witek Home i innych
Gwarancja
bezpiecznych zakupów
Dodatkowe pakiety projektowe
- Kosztorys inwestorski cena ustalana indywidualnie
- Kolektory słoneczne cena ustalana indywidualnie
- Kominek z DGP cena ustalana indywidualnie
- Wentylacja mechaniczna z rekuperacją cena ustalana indywidualnie
- Pompa ciepła cena ustalana indywidualnie