Dane techniczne
- Powierzchnia użytkowa 144.52 m²
- Powierzchnia zabudowy 129.02 m²
- Kubatura 484.40 m³
- Kąt nachylenia dachu 30.00°
- Powierzchnia dachu 186.90 m²
- Wysokość budynku 7.29 m
- Min. wymiary działki 17.60x21.44 m
- Garaż 28.89 m²
- Pracownia Studio Z500
Technologia budowy
Ściany: gazobeton, ceramika, silikaty
Dach: dachówka, blachodachówka
Strop: betonowy gęstożebrowy Teriva
Opis
Z188 to niewielki ale funkcjonalny dom z garażem i użytkowym poddaszem. Prostą bryłę urozmaicają ciekawe podziały elewacji uzyskane przez zastosowanie szarego tynku oraz drewna. Nad wejściem zaproponowano nowoczesną formę zadaszenia z pergolą.
Na parterze zaprojektowano obszerny, atrakcyjny salon. Przewidziano tu wszystkie elementy wygodnej strefy dziennej: kominek, duży rodzinny stół, kącik wypoczynkowy z miejscem na telewizor. Kuchnia nie jest całkowicie otwarta na salon, co zapewnia komfort jej użytkowania. Przylega do niej spora spiżarnia.
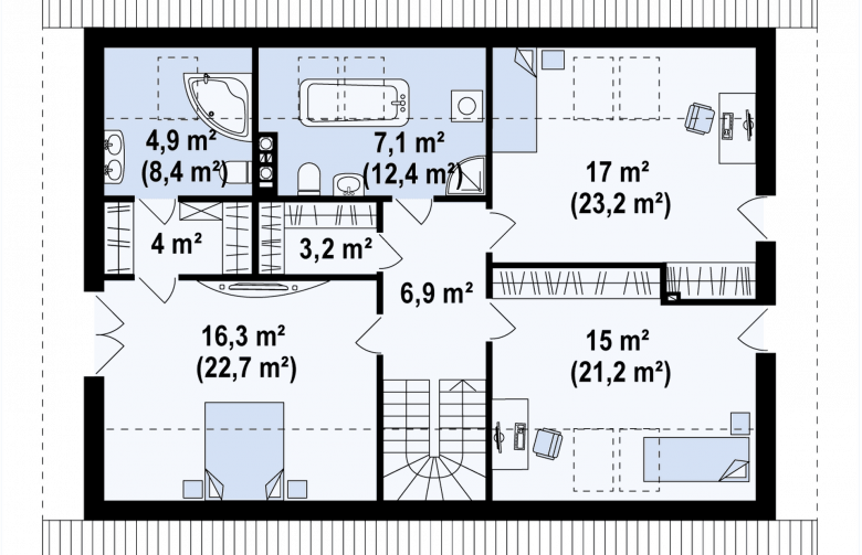
Okna z salonu i kuchni zaprojektowano od strony ogrodu. Na parterze znajduje się dodatkowy pokój na np. gabinet. W holu jest miejsce na dużą szafę oraz schowek pod schodami. Z garażu połączonego z pomieszczeniem gospodarczym można dostać się do domu przez niewielki korytarz. Strefa nocna na piętrze to 3 sypialnie, duża łazienka oraz ogólnodostępna garderoba. Główna sypialnia posiada odrębną łazienkę z garderobą.
Dbamy o swoich Klientów, jak nikt inny!
Do każdego projektu zakupionego za pośrednictwem serwisu kreoDOM.pl otrzymasz książeczkę z rabatami na zakupy w firmach Komfort, Fachowiec, Domino Łazienki, Komandor, Witek Home i innych. Książeczka na pewno okaże się przydatna podczas urządzania Twojego wymarzonego domu!
Książeczka z rabatami do takich firm jak: Komfort, Domino Łazienki, Fachowiec, Vox, Komandor, Witek Home i innych
Gwarancja
bezpiecznych zakupów
Dodatkowe pakiety projektowe
- Kosztorys inwestorski 249,00zł
- Zestawienie materiałów 57,00 zł
- Wentylacja mechaniczna z rekuperacja 550,00 zł
- Pompa ciepła 250,00 zł
- Kotłownia na paliwo stałe zapytaj o dostępność
- Ogrzewanie podłogowe 350,00 zł
- Kolektory słoneczne 250,00 zł
- Przydomowa oczyszczalnia ścieków 350,00 zł
- Wersja elektroniczna projektu 197,00 zł
- Dodatkowy egzemplarz projektu 249,00 zł