Dane techniczne
- Powierzchnia użytkowa 101.92 m²
- Powierzchnia zabudowy 77.67 m²
- Kubatura 282.42 m³
- Kąt nachylenia dachu 35.00°
- Powierzchnia dachu 121.16 m²
- Wysokość budynku 7.31 m
- Min. wymiary działki 15.44x17.94 m
- Pracownia Studio Z500
Technologia budowy
Ściany: gazobeton, ceramika, silikaty
Dach: dachówka, blachodachówka
Strop: betonowy gęstożebrowy Teriva
Opis
Projekt Z233 jest to funkcjonalny dom z poddaszem użytkowym.
Prosta bryła przykryta dachem dwuspadowym została ciekawie wykończona przez zastosowanie drewnianych elementów które idealnie komponują się z jasnym tynkiem.
Na parterze znajduje się strefa dzienna budynku. Przestronny salon połączony został z kuchnią oraz wyjściem na taras. W centralnej części domu umieszczono hol, który jest łącznikiem pomiędzy poszczególnymi pomieszczeniami. Duża zaletą tego projektu jest spore pomieszczenie gospodarcze oraz pokój, który może służyć jako gabinet bądź pokój gościnny. Na parterze jest także wc, oraz sień z miejscem na szafę wnękową.
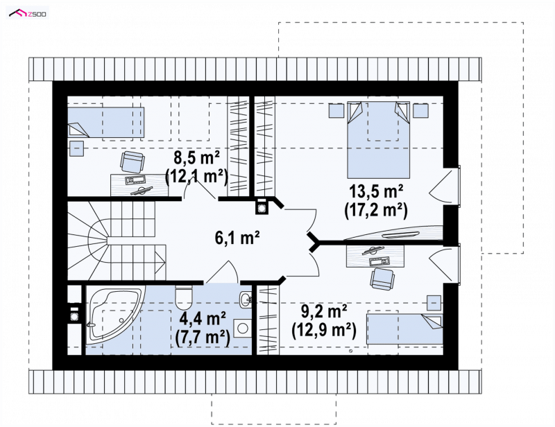
Poddasze to strefa nocna budynku, w której znajdują się 3 sypialnie, w tym dwie z wyjściem na balkon oraz ogólnodostępna łazienka.
Z233 to praktyczny projekt domu, który ze względu na niewielką szerokość elewacji frontowej pozwoli ulokować budynek także na wąskiej działce (13,44m).
Dbamy o swoich Klientów, jak nikt inny!
Do każdego projektu zakupionego za pośrednictwem serwisu kreoDOM.pl otrzymasz książeczkę z rabatami na zakupy w firmach Komfort, Fachowiec, Domino Łazienki, Komandor, Witek Home i innych. Książeczka na pewno okaże się przydatna podczas urządzania Twojego wymarzonego domu!
Książeczka z rabatami do takich firm jak: Komfort, Domino Łazienki, Fachowiec, Vox, Komandor, Witek Home i innych
Gwarancja
bezpiecznych zakupów
Dodatkowe pakiety projektowe
- Kosztorys inwestorski 249,00zł
- Zestawienie materiałów 57,00 zł
- Wentylacja mechaniczna z rekuperacja 550,00 zł
- Pompa ciepła 250,00 zł
- Kotłownia na paliwo stałe zapytaj o dostępność
- Ogrzewanie podłogowe 350,00 zł
- Kolektory słoneczne 250,00 zł
- Przydomowa oczyszczalnia ścieków 350,00 zł
- Wersja elektroniczna projektu 197,00 zł
- Dodatkowy egzemplarz projektu 249,00 zł