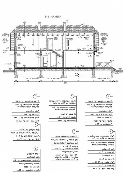
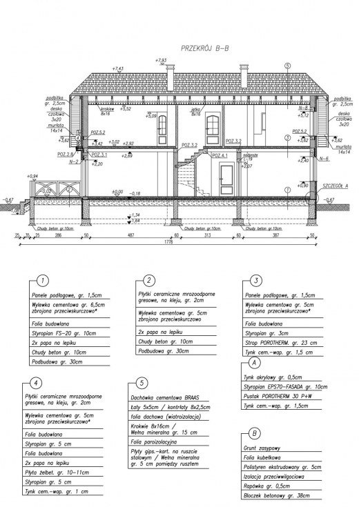
Technologia tradycyjna, ściany zewnętrzne murowane grubości 30 cm + 10 cm styropian, ściany wewnętrzne (nośne) gr. 25 cm i działowe gr. 12 cm. Wszystkie ściany wykonane z pustaków ceramicznych „POROTHERM”. Strop gęstożebrowy „POROTHERM”o gr. 23 cm.. Konstrukcja więźby dachowej drewniana, pokrycie dachówka ceramiczna.
"Merlo" To dom przeznaczony dla dwóch rodzin, który szczyci się swoim sporym rozmiarem. Oczywiście nie jest regułą ile rodzin ma go użytkować, dlatego też może być on przytulnym gniazdkiem wyłącznie dla jednej. Wystarczy, że kochają Państwo dużą przestrzeń i przestronne pomieszczenia! Wyśmienicie prezentują się nieregularne kształty budynku szczególnie uwydatnione na jego frontowej elewacji. Dodatkowo zostały one ozdobione klinkierem, który subtelnie okala je nadając im niepowtarzalny wygląd oraz odporność na zmienne warunki atmosferyczne. Parter i poddasze zostały połączone klatką schodową umieszczoną zaraz przy drzwiach frontowych, wydzieloną w ten sposób od reszty pomieszczeń, aby obie rodziny mogły swobodnie się przemieszczać. Na obu piętrach, lecz różnie rozmieszczone, znajdują się kuchnia, łazienka, salon, jadalnia oraz dwie sypialnie. Jedynym pomieszczeniem występującym wyłącznie na niższym poziomie jest kotłownia, do której można wejść drzwiami znajdującymi się wewnątrz domu, jak i drugimi prowadzącymi z zewnątrz- umieszczonymi na tyłach budynku. Merlo wyposażony został w uroczy taras, który będzie odpowiedni na gorące dni, oraz balkon z solidnym zadaszeniem, dzięki któremu będą Państwo mogli przesiadywać na świeżym powietrzu wtedy kiedy dusza zapragnie! Projekt domu dwurodzinnego z wydzieloną wewnętrzną klatką schodową. Projekt składa się części architektonicznej, konstrukcyjnej, wewnętrznych instalacji wod.-kan, c. o. i elektrycznej. W projekcie załączone są podstawowe zestawienie stali, drewna i stolarki okienno - drzwiowej. Do projektu dołączamy bezpłatną zgodę na wprowadzenie zmian, oświadczenie projektantów o wykonaniu projektu zgodnie z obowiązującymi normami i przepisami oraz kserokopie uprawnień projektantów wraz z aktualnym wpisem do izby. Orientacyjna ilość pustaków porotherm 30 p+w : 3400 szt.