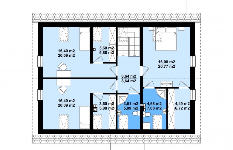
Dane techniczne
- Powierzchnia użytkowa 176.94 m²
- Powierzchnia zabudowy 128.55 m²
- Kubatura 798.00 m³
- Kąt nachylenia dachu 35.00°
- Wysokość budynku 7.00 m
- Min. wymiary działki 21.38x17.54 m
- Pracownia Kup projekt
Technologia budowy
Budynek wykonany w technologii tradycyjnej. Ściany warstwowe grubości 39cm, murowane z bloczków z betonu komórkowego grubości 24cm, ocieplone styropianem grubości 15cm. Ściany wewnętrzne z bloczków z betonu komórkowego grubości 24cm i 12cm. Kominy systemowe firmy SCHIEDEL. Strop gęstożebrowy „TERIVA”. Więźba dachowa dwuspadowa, drewniana, pokryta blachą na rąbek.
Opis
PROJEKT:
Projekt budynku mieszkalnego, jednorodzinnego, parterowego, niepodpiwniczonego z poddaszem użytkowym. Do projektu dołączone jest zestawienie: stali, więźby dachowej oraz stolarki drzwiowej i okiennej, jak równieżbezpłatna zgoda na dokonanie zmian.
Dbamy o swoich Klientów, jak nikt inny!
Do każdego projektu zakupionego za pośrednictwem serwisu kreoDOM.pl otrzymasz książeczkę z rabatami na zakupy w firmach Komfort, Fachowiec, Domino Łazienki, Komandor, Witek Home i innych. Książeczka na pewno okaże się przydatna podczas urządzania Twojego wymarzonego domu!
Książeczka z rabatami do takich firm jak: Komfort, Domino Łazienki, Fachowiec, Vox, Komandor, Witek Home i innych
Gwarancja
bezpiecznych zakupów
Dodatkowe pakiety projektowe