Dane techniczne
- Powierzchnia użytkowa 126.20 m²
- Powierzchnia zabudowy 99.20 m²
- Kubatura 638.50 m³
- Kąt nachylenia dachu 40.00°
- Wysokość budynku 7.36 m
- Min. wymiary działki 20.00x20.00 m
- Pracownia MOJ-DOM
Technologia budowy
Fundamenty: żelbetowe, wylewane
Ściany fundamentów: betonowe wylewane lub z bloczków betonowych
Ściany zewnętrzne: jednowarstwowe beton komórkowy lub pustaki ceramiczne
Strop: żelbetowy, prefabrykowany
Schody: żelbetowe
Pokrycie dachu: dachówka betonowa
Opis
Budynek jednorodzinny, parterowy, z poddaszem mieszkalnym, niepodpiwniczony, 5 pokoi, kuchnia,
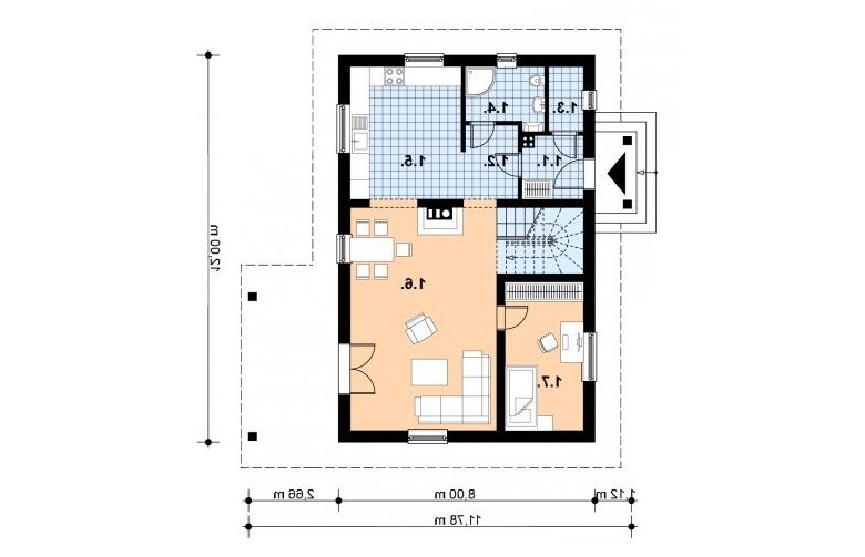
Rzuty
1. wiatrołap2.7 m2
2. hall3.8 m2
3. pom.gosp.2.2 m2
4. łazienka4.4 m2
5. kuchnia14.6 m2
6. pokój dzienny32.0 m2
7. sypialnia10.7 m2
1. hall10.3 m2
2. sypialnia15.1 m2
3. sypialnia21.8 m2
4. sypialnia18.4 m2
5. garderoba3.7 m2
6. łazienka6.9 m2
Rzuty
1. wiatrołap2.7 m2
2. hall3.8 m2
3. pom.gosp.2.2 m2
4. łazienka4.4 m2
5. kuchnia14.6 m2
6. pokój dzienny32.0 m2
7. sypialnia10.7 m2
1. hall10.3 m2
2. sypialnia15.1 m2
3. sypialnia21.8 m2
4. sypialnia18.4 m2
5. garderoba3.7 m2
6. łazienka6.9 m2
Dbamy o swoich Klientów, jak nikt inny!
Do każdego projektu zakupionego za pośrednictwem serwisu kreoDOM.pl otrzymasz książeczkę z rabatami na zakupy w firmach Komfort, Fachowiec, Domino Łazienki, Komandor, Witek Home i innych. Książeczka na pewno okaże się przydatna podczas urządzania Twojego wymarzonego domu!
Książeczka z rabatami do takich firm jak: Komfort, Domino Łazienki, Fachowiec, Vox, Komandor, Witek Home i innych
Gwarancja
bezpiecznych zakupów
Dodatkowe pakiety projektowe