Dane techniczne
- Powierzchnia użytkowa 116.10 m²
- Powierzchnia zabudowy 125.30 m²
- Kubatura 682.00 m³
- Kąt nachylenia dachu 40.00°
- Wysokość budynku 8.06 m
- Min. wymiary działki 16.60x23.10 m
- Garaż 33.20 m²
- Pracownia Krajobrazy
Technologia budowy
Ściany budynku zaprojektowano z betonu komórkowego z dociepleniem lub w innej technologii w ramach adaptacji. Strop gęstożebrowy, więźba drewniana, pokrycie dachówką ceramiczną lub cementową. Inne pokrycia w ramach adaptacji. Elewacje tynkowane, elementy fasad okładane płytką kamienną lub ceramiczną.
Opis
Budynek piętrowy z garażem dwustanowiskowym. Na parterze pokój dzienny połączony z kuchnią, a także dodatkowy pokój, łazienka i pomieszczenie gospodarcze. Na poddaszu znajdują się 3 sypialnie, duża łazienka i garderoba. Dokumentacja dostępna również w odbiciu lustrzanym.
Prosty, tani w budowie dom z dachem dwuspadowym. Eleganckiego i klasycznego wystroju dodają mu fasady domu oraz gzymsy. Wyjściem na taras jest duże okno balkonowe, które doskonale doświetla strefę dzienną.
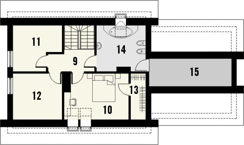
Rzuty
1. wiatrołap 3.9m2
2. pokój dzienny z kuchnią 30.0m2
3. pokój 13.0m2
4. hall 8.4m2
5. spiżarnia 1.7m2
6. łazienka 3.8m2
7. pom. gospodarcze 6.2m2
8. garaż 33.2m2
9. hall 4.8m2
10. pokój 12.7m2
11. pokój 8.6m2
12. pokój 10.1m2
13. garderoba 3.1m2
14. łazienka 9.8m2
15. strych
Rzuty
1. wiatrołap 3.9m2
2. pokój dzienny z kuchnią 30.0m2
3. pokój 13.0m2
4. hall 8.4m2
5. spiżarnia 1.7m2
6. łazienka 3.8m2
7. pom. gospodarcze 6.2m2
8. garaż 33.2m2
9. hall 4.8m2
10. pokój 12.7m2
11. pokój 8.6m2
12. pokój 10.1m2
13. garderoba 3.1m2
14. łazienka 9.8m2
15. strych
Dbamy o swoich Klientów, jak nikt inny!
Do każdego projektu zakupionego za pośrednictwem serwisu kreoDOM.pl otrzymasz książeczkę z rabatami na zakupy w firmach Komfort, Fachowiec, Domino Łazienki, Komandor, Witek Home i innych. Książeczka na pewno okaże się przydatna podczas urządzania Twojego wymarzonego domu!
Książeczka z rabatami do takich firm jak: Komfort, Domino Łazienki, Fachowiec, Vox, Komandor, Witek Home i innych
Gwarancja
bezpiecznych zakupów
Dodatkowe pakiety projektowe
- Kosztorys inwestorski 950 zł
- Zielony pakiet z pompą ciepła 750 zł
- Aktualizacja do WT2021 850 zł