Dane techniczne
- Powierzchnia użytkowa 116.23 m²
- Powierzchnia zabudowy 132.32 m²
- Kubatura 625.33 m³
- Kąt nachylenia dachu 45.00°
- Powierzchnia dachu 250.00 m²
- Wysokość budynku 8.58 m
- Min. wymiary działki 22.20x18.80 m
- Garaż 32.12 m²
- Pracownia Archipelag
Technologia budowy
Dom zaprojektowano w technologii murowej ze stropem gęstożebrowym. Schody wewnętrzne żelbetowe. Dach o konstrukcji drewnianej kryty dachówką cementową. Elewacje wykonano z tynku strukturalnego oraz z okładziny klinkierowej. Stolarka okienna drewniana. Rolety zewnętrzne naokienne w systemie CleverBox firmy BeClever.
Opis
Dom parterowy z użytkowym poddaszem niepodpiwniczony przeznaczony dla 3-5-osobowej rodziny. Dom o prostej konstrukcji i ciekawym układzie funkcjonalnym. Na parterze zaplanowano strefę dzienną na poddaszu strefę nocną. Istnieją cztery wersje domu Śnieżynka które różnią się od siebie wielkością powierzchni elementami architektonicznymi elewacji oraz lokalizacją kuchni w układzie funkcjonalnym.
Rzuty
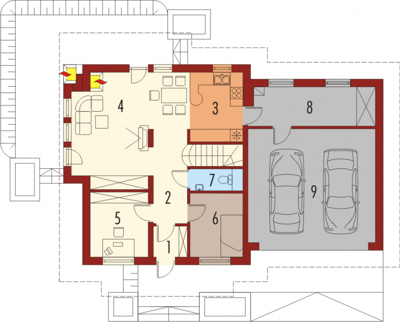
PARTER
- Wiatrołap 2.16 m2
- Hol 6.17 m2
- Kuchnia 8.00 m2
- Pokój z jadalnią 24.68 m2
- Gabinet 8.46 m2
- Pokój 7.93 m2
- Toaleta 1.71 m2
- Pom. gospodarcze 10.57 m2
- Garaż 32.12 m2
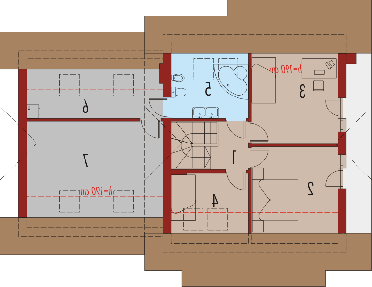
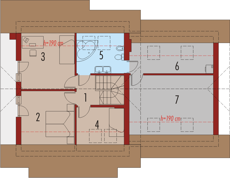
PODDASZE
- Korytarz 3.03 m2
- Sypialnia 10.99 m2
- Pokój 11.16 m2
- Pokój 6.88 m2
- Łazienka 6.88 m2
- Pralnia 7.61 m2
- Strych 21.34 m2
Rzuty
PARTER
- Wiatrołap 2.16 m2
- Hol 6.17 m2
- Kuchnia 8.00 m2
- Pokój z jadalnią 24.68 m2
- Gabinet 8.46 m2
- Pokój 7.93 m2
- Toaleta 1.71 m2
- Pom. gospodarcze 10.57 m2
- Garaż 32.12 m2
PODDASZE
- Korytarz 3.03 m2
- Sypialnia 10.99 m2
- Pokój 11.16 m2
- Pokój 6.88 m2
- Łazienka 6.88 m2
- Pralnia 7.61 m2
- Strych 21.34 m2
Dbamy o swoich Klientów, jak nikt inny!
Do każdego projektu zakupionego za pośrednictwem serwisu kreoDOM.pl otrzymasz książeczkę z rabatami na zakupy w firmach Komfort, Fachowiec, Domino Łazienki, Komandor, Witek Home i innych. Książeczka na pewno okaże się przydatna podczas urządzania Twojego wymarzonego domu!
Książeczka z rabatami do takich firm jak: Komfort, Domino Łazienki, Fachowiec, Vox, Komandor, Witek Home i innych
Gwarancja
bezpiecznych zakupów
Dodatkowe pakiety projektowe
- Kosztorys inwestorski cena ustalana indywidualnie
- Wentylacja mechaniczna z rekuperacją 700,00 zł
- Wentylacja mechaniczna + GPWC 700,00 zł
- Kolektory Słoneczne 400,00 zł
- Panele Fotowoltaiczne 400,00 zł
- Pompa Ciepła 500,00 zł
- Kominek z DGP 400,00 zł
- Biologiczna oczyszczalnia ścieków 150,00 zł
- Centralny Odkurzacz 300,00 zł
- Szambo przydomowe 200,00 zł
- Dodatkowy egzemplarz projektu 150,00 zł